Vuokrataan liiketilat, tuotantotilat, varastotilat - Helsinki
Sorvaajankatu 11 a, Herttoniemi, 00880 Helsinki #10772378
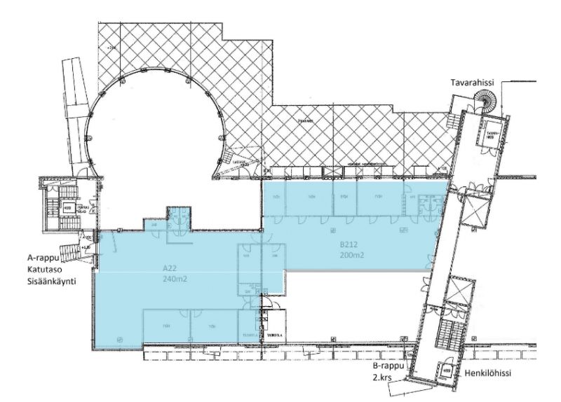
SORVAAJANKATU 11a - liike-/tuotanto-/toimistotila 440m2
Tässä monikäyttöisessä tilassa on avotilan lisäksi huoneita, varastotilaa, 2 keittiö- ja 4 wc-tilaa. Ikkunanäkyvyyttä ja käynti suoraan kadulta. Tavarahuolto katetun lastauslaiturin (jossa nostin)/tavarahissin kautta.
Lisätiedot ja kohdenäytöt: p. 040 7070 321 / HeikkiKerros: 2
Osoite
Sorvaajankatu 11 a, 00880 Helsinki
Tilatyyppi
Liiketilaa
440 m2
Tuotantotilaa
440 m2
Varastotilaa
440 m2
Yhteensä
440 m2
Kulkuyhteydet
Metro: Herttoniemi 850 m / Siilitie 1,6 km -
Bussipysäkki: 300 m (linjat 79/500) ja 450 m (linjat 80/82/82B/83/94N) -
Itäväylälle autolla: 600 m
Bussipysäkki: 300 m (linjat 79/500) ja 450 m (linjat 80/82/82B/83/94N) -
Itäväylälle autolla: 600 m
Ota yhteyttä
CRE PREMISES
Puh. Näytä puhelinnumero 020 7290 710
Vantaankoskentie 14
01670 VANTAA
Pyydä lisätietoa
