Vuokrataan toimistotilat, liiketilat - Helsinki
Sorvaajankatu 11 a, Herttoniemi, 00880 Helsinki #10772373
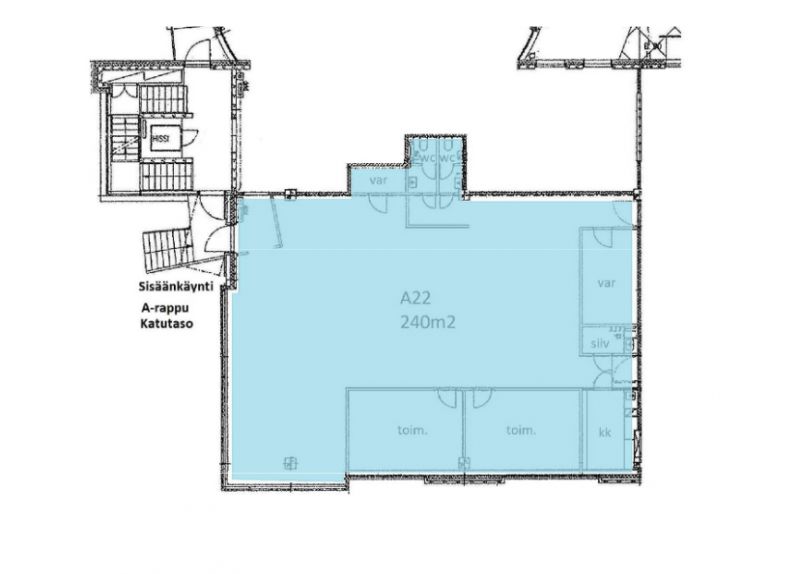
SORVAAJANKATU 11a - showroom /liike-/toimistotila 240m2
Tässä monikäyttöisessä tilassa on avotilan lisäksi 2 huonetta, pieni- ja hieman isompi varastotila, keittiö ja 2 x wc-tila. Ikkunanäkyvyyttä ja käynti suoraan kadulta. Soveltuu erinomaisesti mm. isännöitsijä- ja tilitoimistoille.
Lisätiedot ja kohdenäytöt: p. 040 7070 321 / HeikkiKerros: 2(katu)
Osoite
Sorvaajankatu 11 a, 00880 Helsinki
Tilatyyppi
Toimistotilaa
240 m2
Liiketilaa
240 m2
Yhteensä
240 m2
Kulkuyhteydet
Metro: Herttoniemi 850 m / Siilitie 1,6 km -
Bussipysäkki: 300 m (linjat 79/500) ja 450 m (linjat 80/82/82B/83/94N) -
Itäväylälle autolla: 600 m
Bussipysäkki: 300 m (linjat 79/500) ja 450 m (linjat 80/82/82B/83/94N) -
Itäväylälle autolla: 600 m
Ota yhteyttä
CRE PREMISES
Puh. Näytä puhelinnumero 020 7290 710
Vantaankoskentie 14
01670 VANTAA
Pyydä lisätietoa
