Vuokrataan liiketilat - Helsinki
Katajanokanlaituri 4, Katajanokka, 00160 Helsinki #10772177
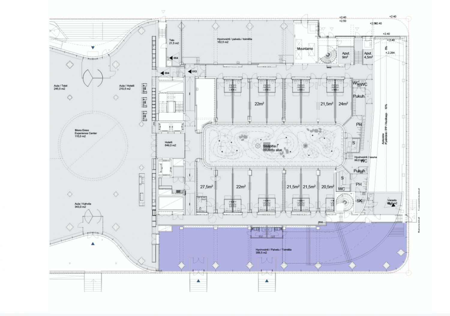
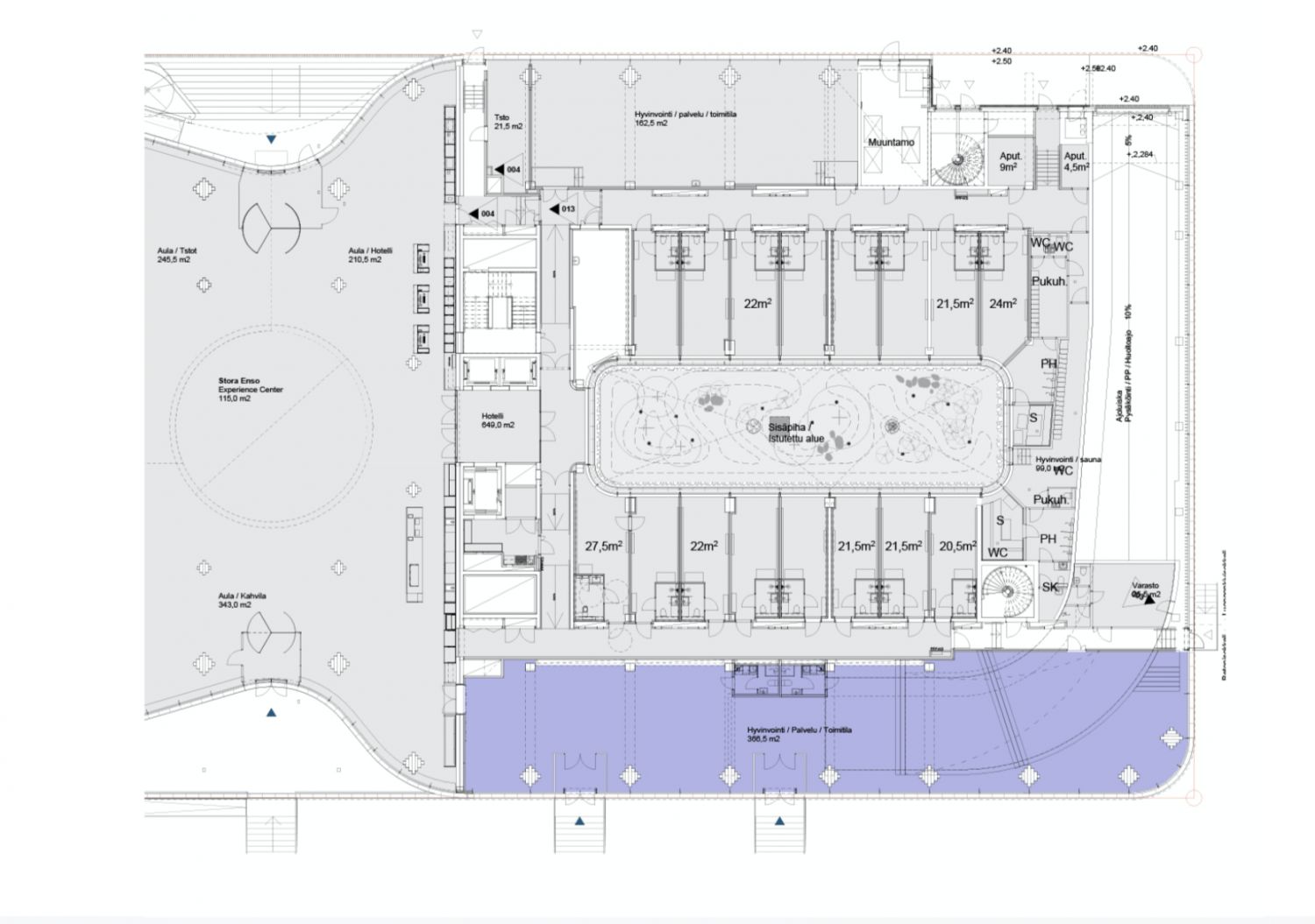
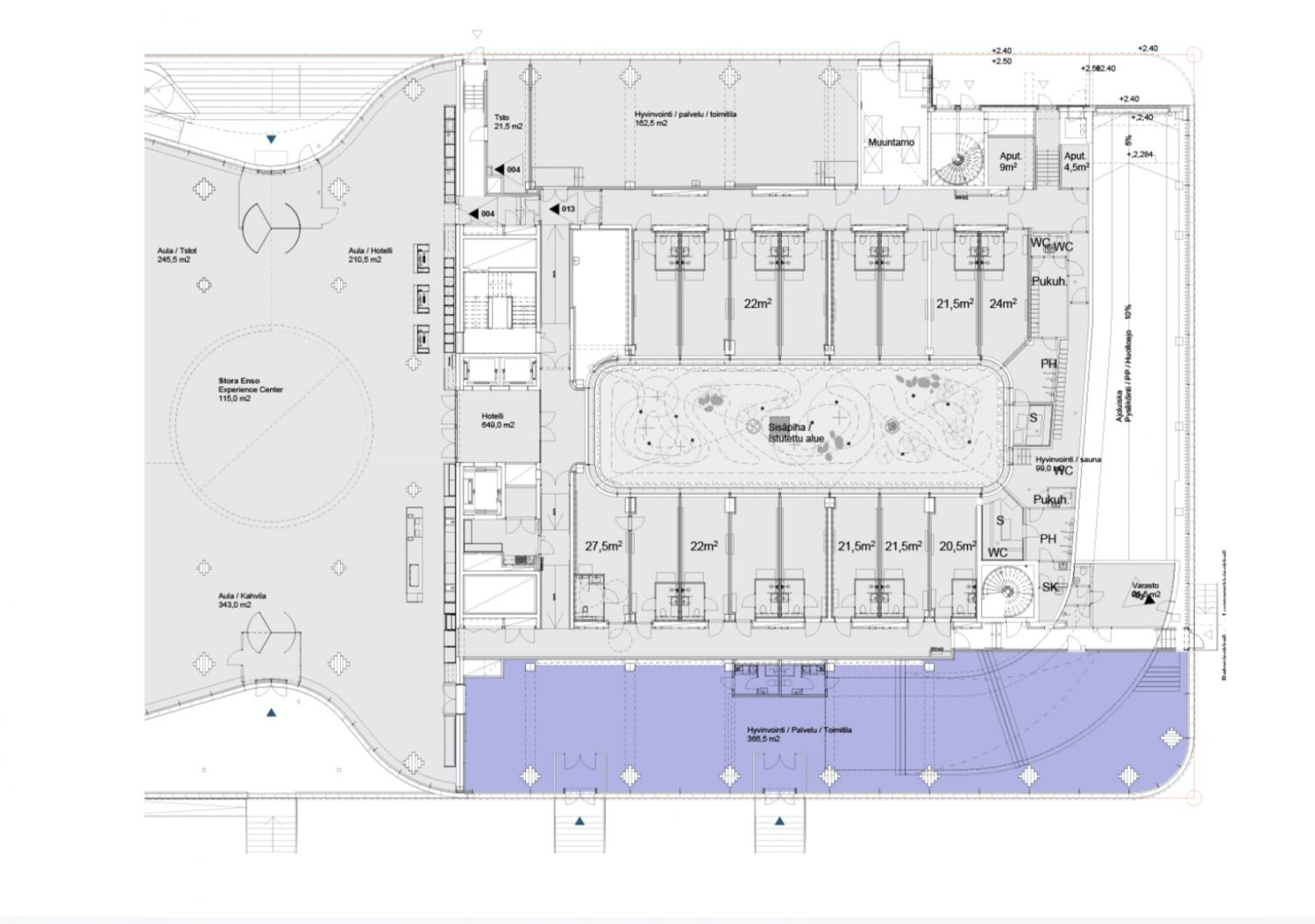
Katutason merenpuoleinen liiketila (pohjakuvassa väritetty alue), joka sopisi hyvin esimerkiksi showroomiksi hienojen maisemien ansiosta. Huom. tilaan ei ole tehty taloteknisiä varauksia ravintola-/kahvilatoiminnalle.
Katajanokan Laituri on kesällä 2024 valmistunut uudenaikainen toimitalo, joka sijaitsee keskeisellä paikalla Helsingin Katajanokalla meren rannalla. Merkittävään kulttuuriympäristöön sijoittuvaan kiinteistöön tulee myös julkisia tiloja, jolloin se palvelee myös merellisestä sijainnista nauttivia kaupunkilaisia ja matkailijoita. Näkyvät puupinnat sekä rakennuksen persoonallinen muotoilu toimivat vahvoina erottautumistekijöinä alueen muista kiinteistöistä. Valmistuttuaan kiinteistölle tullaan hakemaan LEED Platinum -ympäristösertifikaattia. Viimeiset vapaat toimitilat vuokrataan nyt!
Lisätiedot ja kohde-esittelyt 020 7290 710, lisää kohteita premises.fi
Kohteella ei ole lain edellyttämää energiatodistusta tai energialuokka ei tiedossa.Kerros: 1
CRE PREMISES
Puh. Näytä puhelinnumero 020 7290 710
Vantaankoskentie 14
01670 VANTAA
