Vuokrataan toimistotilat - Lahti
Aleksanterinkatu 12, 15110 Lahti #10772121
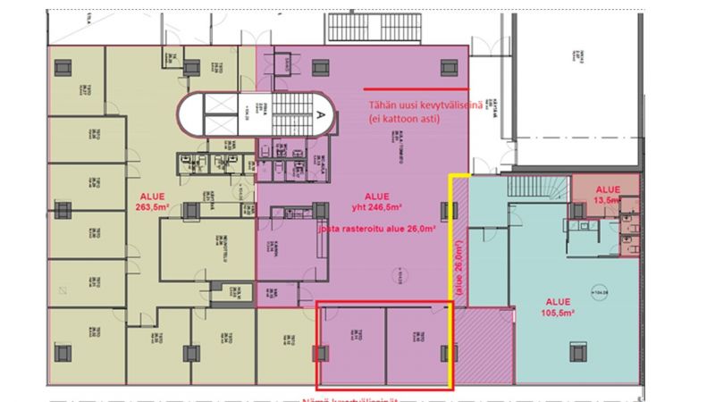
Lahden ydinkeskustassa on juuri vapautunut pitkäaiaikaisesta käytöstä ensimmäisen kerroksen 509 m2 toimistotila. Tila on kombitoimisto, eli siinä on olemassa avotilaa ja perinteisiä erillisiä toimistohuoneita. Tilan keskellä on keittiötila ja neuvottelutila valmiina. Näkymät tilasta ovat Aleksanterinkadulle ja Lanun aukiolle.
Lisätiedot ja esittelÿ kohteesta 0400891057/0207290710
lisää kohteita www.premises.fiKerros: 1
Osoite
Aleksanterinkatu 12, 15110 Lahti
Tilatyyppi
Toimistotilaa
509 m2
Kulkuyhteydet
Erittöin hyvät toimisto Lahden ydinkeskustassa
Ota yhteyttä
CRE PREMISES
Puh. Näytä puhelinnumero 020 7290 710
Vantaankoskentie 14
01670 VANTAA
Pyydä lisätietoa
