Vuokrataan varastotilat - Kerava
Tervahaudankatu 7, 04200 Kerava #10772007
Monipuolinen logistiikkakeskus Keravalla tehokkaaseen tavaravirran hallintaan!
Keravalla sijaitseva moderni logistiikkakeskus tarjoaa joustavat ja tehokkaat tilaratkaisut varastointi- ja logistiikkatoimintaan. Kiinteistö on suunniteltu erityisesti sujuvaa tavaravirtaa varten, ja sen cross-docking -ratkaisut mahdollistavat tehokkaan tavaroiden käsittelyn ja jakelun.
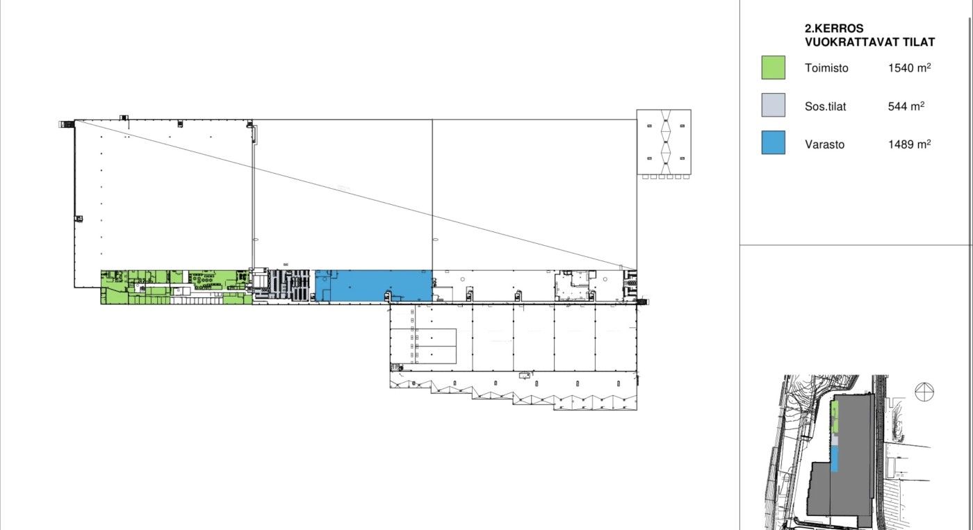
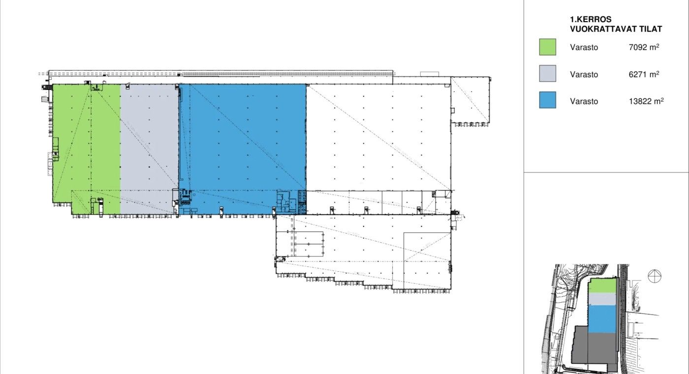
Varastotilat ovat korkeita ja toimivia, vapaan sisäkorkeuden ollessa noin 7–11 metriä. Tilat ovat valmiiksi hyllytettyjä ja varustettu runsaalla määrällä lastauslaitureita, joissa on kuormantasaajat sekä automaattiset nosto-ovet. Kiinteistössä on yhteensä noin 60 lastauslaituria, ja varastotilan vapaa sisäkorkeus yltää parhaimmillaan noin 12 metriin, mikä mahdollistaa tehokkaan varastoinnin ja logistiikkatoiminnot.
Kiinteistö sijaitsee logistisesti erinomaisella paikalla osoitteessa Tervahaudankatu 7 Keravalla, noin 30 kilometriä Helsingin keskustasta pohjoiseen. Kohteesta on sujuvat yhteydet Lahdenväylälle (E75), Helsinki-Vantaan lentoasemalle (noin 20 km), Vuosaaren satamaan (noin 25 km) sekä Suomen pääliikenneverkkoon. Keravan rautatieasema sijaitsee noin kahden kilometrin päässä, mikä helpottaa henkilöstön kulkemista.
Kiinteistöllä on laaja piha-alue, joka tarjoaa reilusti kääntötilaa raskaalle liikenteelle sekä runsaasti pysäköintitilaa. Pihalla on noin 320 autopaikkaa kiinteistön käyttäjille. Rakennus täyttää myös nykyaikaiset vastuullisuusvaatimukset ja sillä on BREEAM Very Good -ympäristöluokitus.
Kysy lisää: jouko.raitanen@rhg.fi/0504695444
RHG Real Estate
Hämeenkatu 2 B20, 20500 Turku
Jouko Raitanen
Näytä puhelinnumero
050 469 5444
