Vuokrataan toimistotilat - Helsinki
Aleksanterinkatu 11, Keskusta, 00100 Helsinki #10772003
Täysin remontoitua toimistotilaa erinomaisella paikalla Helsingin ydinkeskustassa. Tämä LEED Golden sertifoitu kiinteistö on loppuvuonna 2020 valmistunut saneerauksesta ja kiinteistön infra vastaa uudisrakennuksen tasoa.
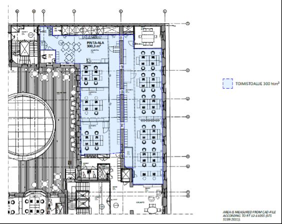
Tämä valoisa 317 m2 toimistokokonaisuus sijaitsee kiinteistön 3. kerroksessa. Tilassa on kolme neuvottelutilaa, joissa on parannettu ilmanvaihto. Nämä äänieristyt lasiseinäiset tilat sopivat hyvin myös ryhmätyöhuoneiksi. Avotilan lisäksi tilaan kuuluu oma keittiö ja loungealue. Vuokraan kuuluvat myös kalusteet. Tiloihin on kaksi sisäänkäyntiä. Työmatkapyöräilijöille on todella siistit tilat kiinteistön katutasossa.
Aleksanterinkatu 11 on toimisto- ja liikekiinteistö, joka sijaitsee loistavalla paikalla Aleksanterinkadun ja Kluuvinkadun kulmassa. Koko kiinteistö on saneerattu täysin, ja sen tekniikka ja sisustusmateriaalit vastaavat nykypäivän toimistovuokralaisen vaatimuksiin.
Kysy lisää numerosta 044 723 4700 tai info@bref.fi. Palvelumme on tilanhakijoille ilmainen.
Hissi
Bureau Real Estate Finland Oy
Lars Sonckin kaari 16, 02600 Espoo
Näytä puhelinnumero
0447234700
Bureau Real Estate Finland Oy
https://www.bref.fi