Vuokrataan toimistotilat - Helsinki
Elimäenkatu 9 A, Vallila, Vallila, 00510 Helsinki #10771939
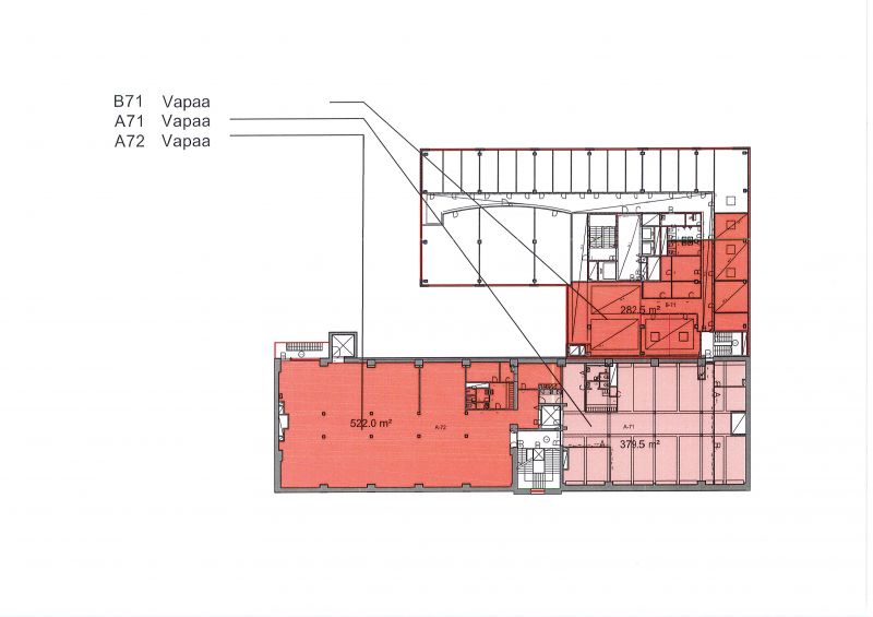
Toimistotilaa 379,5 m² (tila A71) kiinteistön 7. kerroksessa.
Osoite
Elimäenkatu 9 A, Vallila, 00510 Helsinki
Tilatyyppi
Toimistotilaa
379,5 m2
Kiinteistö
Nostalgisessa Kravattitehtaassa toimistotilaa kiinteistön 7. kerroksessa.
Sijainti
Keskeinen sijainti Vallilassa Teollisuuskadun ja Mäkelänkadun välissä.
Pysäköinti
Kiinteistöllä 171 autopaikkaa ja lisäksi Aimo Parkin hallissa 700 paikkaa.
Palvelut
Kiinteistössä tasokas aulapalvelu ja lounasravintola ja pyöräilijöille suihku- ja pukeutumistilat.
Lähialueella useita lounas- ja kahvilaravintoloita.
Lähialueella useita lounas- ja kahvilaravintoloita.
Kulkuyhteydet
Raitiovaunupysäkki 200 m
Bussipysäkki 150 m
Metroasema 1,3 km
Juna-asema 1,2 km
Lentoasema 16 km
Bussipysäkki 150 m
Metroasema 1,3 km
Juna-asema 1,2 km
Lentoasema 16 km
Vapautuu
Heti
Energiatehokkuusluokka
Ei lain edellyttämää energiatodistusta
Ota yhteyttä
Comreal Oy LKV
Tuula Leikas
Näytä puhelinnumero
040 531 3722
P.
Näytä puhelinnumero
020 744 1000
Läkkisepänkuja 6, 00620 Helsinki
Comreal Oy on kasvava ja osaava kiinteistöalan palveluntuottaja kiinteistöjen omistajille ja käyttäjille.
Kiinteistö on sijoittajalle hyvä sijoitus vain, jos siellä on tyytyväiset asiakkaat, eli vuokralaiset. Siksi laadukas asiakaspalvelu on toiminnan lähtökohta.
Pyydä lisätietoa
