Vuokrataan toimistotilat - Helsinki
John Stenbergin ranta 2, Siltasaari, 00530 Helsinki #10771914
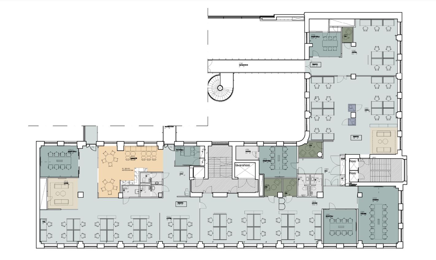
Vuokrattavana ilmastoitua, valoisaa ja modernia avo- /kombitoimistotilaa.
Osoite
John Stenbergin ranta 2, 00530 Helsinki
Tilatyyppi
Toimistotilaa
742 m2
Kiinteistö
Vuokrattavana ilmastoitua, valoisaa ja modernia avo- /kombitoimistotilaa, josta avautuvat hienot näkymät Pitkänsillan suuntaan.
Sijainti
Hakaniemi, Helsinki
Pysäköinti
-Metro
-Bussi
-Oma auto
-Bussi
-Oma auto
Palvelut
-Aulapalvelu
-Lounasravintola
-Kuntosali
-Kokoustiloja
-Lounasravintola
-Kuntosali
-Kokoustiloja
Kulkuyhteydet
-Metro 300m
-Bussipysäkki 200m
-Raitiovaunupysäkki 200m
-Juna-asema 800m
-Bussipysäkki 200m
-Raitiovaunupysäkki 200m
-Juna-asema 800m
Vapautuu
Heti
Kerros
3
Energiatehokkuusluokka
Ei lain edellyttämää energiatodistusta
Näkyvällä paikalla
Hissi
Ota yhteyttä
REALIUM OY LKV
Tammasaarenkatu 1, 00180 Helsinki
Vaihde:
Näytä puhelinnumero
010 326 346
Tuomo Mäkelä
tuomo.makela@realium.fi
p.
Näytä puhelinnumero
044 050 1158
Joel Keto
joel.keto@realium.fi
p.
Näytä puhelinnumero
045 317 0330
KAIKKI TILAVAIHTOEHDOT KERRALLA!
SOITA - MEILAA JA TILAA NÄYTTÖ!
Ilmainen palvelu tilanhakijoille.
Kartoitamme parhaat tilavaihtoehdot.
Kaikki kohteet eivät ole netissä.
Pyydä lisätietoa
