Vuokrataan liiketilat - Helsinki
Ilmalantori 3, Ilmala, 00240 Helsinki #10771795
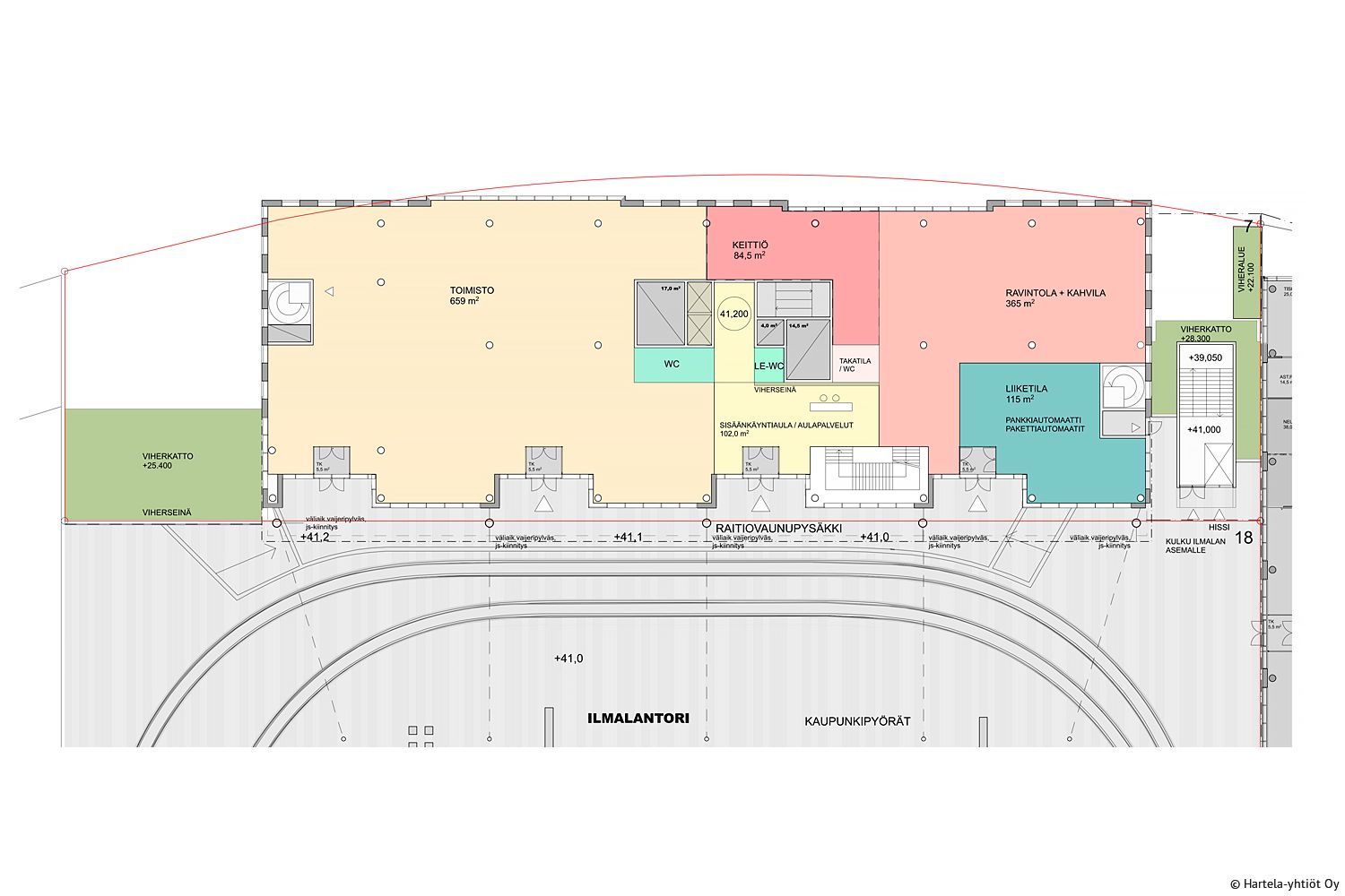
Ilmalantorin reunalle, uuden toimistotalon katutasolle, sijoittuva liiketila. Näkyvä liikepaikka, edessä raitiovaunulinjan päätepysäkki ja vieressä Ilmalan asemalle vievät portaat. Tämä toimitilaan haetaan vuokralaiseksi toimijaa, joka pystyy tarjoamaan kannattavasti palveluita sekä tässä talossa, että Ilmalan alueella yleensä työssä käyville henkilöille.
Ilmalan Tori -toimitilakiinteistö tarjoaa oivan mahdollisuuden toteuttaa uniikit toimitilat nopeasti urbanisoituvaan yritys- ja mediatoiminnan keskukseen. Ota yhteyttä ja pyydä lisätietoja!
Katutasossa
Hartela-yhtiöt Oy
Ilmalantori 1, 00240 Helsinki
Näytä puhelinnumero
010 561 3000
Ilmari Hämäläinen
Näytä puhelinnumero
050 569 0466
Hartela on kotimainen perheyhtiö, joka on rakentanut erilaisia toimitiloja, koteja, julkisia rakennuksia ja infraa jo yli 70 vuotta. Yhtiö toteuttaa hankkeita niin kokonaisvastuu-urakoitsijana kuin perinteisenä urakoitsijana. Hartela on toteuttanut projekteja pienistä teollisuushalleista ja rivitaloista aina suuriin kauppakeskuksiin asti.
http://www.hartela.fi