Vuokrataan toimistotilat - Helsinki
Tammasaarenkatu 1-7, Ruoholahti, 00180 Helsinki #10771660
Vuokrattavana laadukasta, tasokasta, modernia ja jäähdytettyä toimistotilaa merellisessä maisemassa Helsingin keskustan välittömässä läheisyydessä.
Osoite
Tammasaarenkatu 1-7, 00180 Helsinki
Tilatyyppi
Toimistotilaa
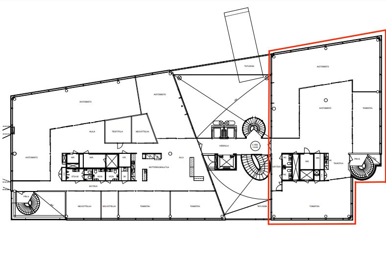
396 m2
Kiinteistö
Vuokrattavana laadukasta, tasokasta, modernia ja jäähdytettyä toimistotilaa merellisessä maisemassa Helsingin keskustan välittömässä läheisyydessä. Tilassa on nykyaikainen talotekniikka ja tila on joustavasti muunneltavissa vuokralaisen tarpeen mukaisiksi.
Sijainti
Ruoholahti, Helsinki
Pysäköinti
Autohalli ja kadulla olevat pysäköintialueet.
Palvelut
-Aulapalvelut
-Lounasravintoloita 2 kpl
-Vuokrattavia neuvottelutiloja
-Saunaosasto
-Kuntosali
-Lounasravintoloita 2 kpl
-Vuokrattavia neuvottelutiloja
-Saunaosasto
-Kuntosali
Kulkuyhteydet
-Metro
-Raitiovaunu
-Bussi
-Oma auto
-Raitiovaunu
-Bussi
-Oma auto
Vapautuu
Heti
Kerros
2
Energiatehokkuusluokka
Ei lain edellyttämää energiatodistusta
Näkyvällä paikalla
Hissi
Ota yhteyttä
REALIUM OY LKV
Tammasaarenkatu 1, 00180 Helsinki
Vaihde:
Näytä puhelinnumero
010 326 346
Tuomo Mäkelä
tuomo.makela@realium.fi
p.
Näytä puhelinnumero
044 050 1158
Joel Keto
joel.keto@realium.fi
p.
Näytä puhelinnumero
045 317 0330
KAIKKI TILAVAIHTOEHDOT KERRALLA!
SOITA - MEILAA JA TILAA NÄYTTÖ!
Ilmainen palvelu tilanhakijoille.
Kartoitamme parhaat tilavaihtoehdot.
Kaikki kohteet eivät ole netissä.
Pyydä lisätietoa
