Vuokrataan toimistotilat - Espoo
Länsituuli 1, Tapiola, 02100 Espoo #10771561
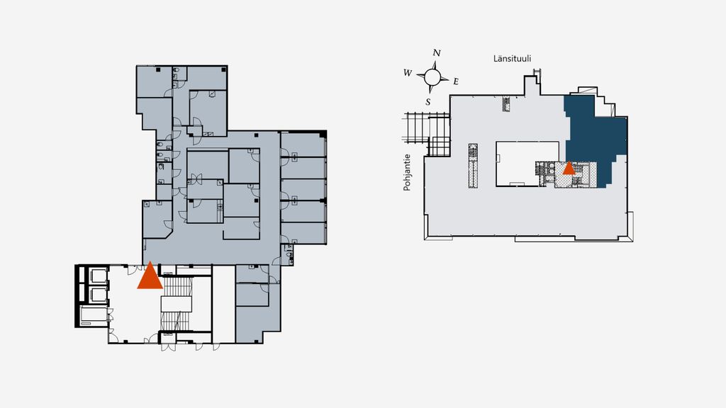
Vuokrattavana 381m2 kokoinen toimistokokonaisuus kiinteistön 2. kerroksesta.
Siistiä toimistotilaa hyvällä sijainnilla Espoon Tapiolassa, Länsikulmassa. Tila ollut aiemmin lääkäriaseman käytössä. Osassa huoneista vesipisteet. Vuokrataan esim. väistötilaksi max. maaliskuun 2026 loppuun saakka.
Länsikulma on toimisto- ja liikekiinteistö, joka sijaitsee Tapiolan keskustassa. Länsikulman palvelutarjontaan kuuluu muun muassa kuntosali, parturi-kampaamo sekä saunaosasto. Lisäksi kiinteistön välittömässä läheisyydessä on kauppakeskus AINOAn kattavat liikkeet ja monipuoliset palvelut.
Kysy lisää numerosta 044 723 4700 tai info@bref.fi. Palvelumme on tilanhakijoille ilmainen.
Bureau Real Estate Finland Oy
Lars Sonckin kaari 16, 02600 Espoo
Näytä puhelinnumero
0447234700
Bureau Real Estate Finland Oy
https://www.bref.fi