Vuokrataan toimistotilat - Helsinki
Salomonkatu 17, Kamppi, 00100 Helsinki #10771521
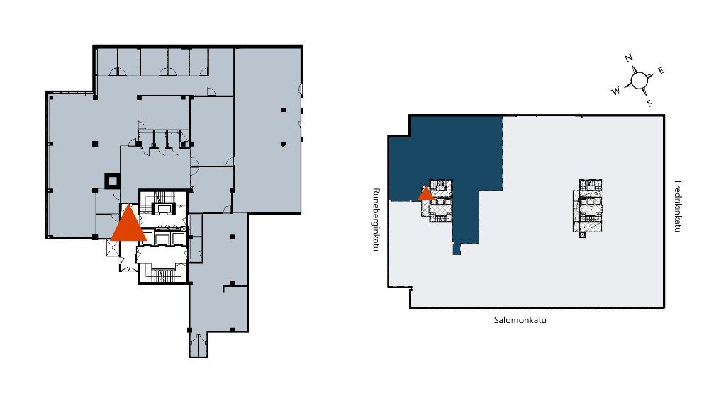
Toimistotilaa huippupaikalla Kampin uudistetussa Autotalossa
Osoite
Salomonkatu 17, 00100 Helsinki
Tilatyyppi
Toimistotilaa
650 m2
Muuta
Vuokrataan huippusijainnilla toimistotilaa Kampin sydämestä Autotalosta, vuokrattava tila on 2. kerroksen 650m2 toimistotila
Toimitila sijaitsee huippupaikalla Helsingin Kampissa täysin uudistuneessa Autotalossa. Tila muodostuu avotilasta, huoneista, keittiö- ja wc sosiaalitiloista.
Kiinteistössä on oma parkkihalli sekä pyöräparkki pukuhuone- ja suihkutiloineen, vuokrattavia neuvotteluhuoneita ja lounasravintola Factory.
Tervetuloa tutustumaan, varaathan välittäjältä oman esittelyaikasi. Voit kysyä meiltä myös muita sopivia vaihtoehtoja, kauttamme löydät juuri teidän tarpeisiinne sopivat tilat. Palvelumme on tilanhakijalle veloitukseton!
Toimitila sijaitsee huippupaikalla Helsingin Kampissa täysin uudistuneessa Autotalossa. Tila muodostuu avotilasta, huoneista, keittiö- ja wc sosiaalitiloista.
Kiinteistössä on oma parkkihalli sekä pyöräparkki pukuhuone- ja suihkutiloineen, vuokrattavia neuvotteluhuoneita ja lounasravintola Factory.
Tervetuloa tutustumaan, varaathan välittäjältä oman esittelyaikasi. Voit kysyä meiltä myös muita sopivia vaihtoehtoja, kauttamme löydät juuri teidän tarpeisiinne sopivat tilat. Palvelumme on tilanhakijalle veloitukseton!
Vapautuu
Kysy
Kerros
2
Ota yhteyttä
Tuloskiinteistöt Oy
Rikhardinkatu 2 B 5, 00130 Helsinki
Näytä puhelinnumero
(09) 6841 620
Jorma Ryynänen
Commercial Real Estate Advisor LKV, LVV
Näytä puhelinnumero
+358 40 708 4064
Nina Meyke
Commercial Real Estate Advisor
Näytä puhelinnumero
+358 50 466 1519
Pyydä lisätietoa
