Vuokrataan toimistotilat, liiketilat - Helsinki
Kaisaniemenkatu 1, Kaisaniemi, 00100 Helsinki #10771512
Huippusijainnilla toimisto- ja liiketilaa Helsingin Kaisaniemessä
Osoite
Kaisaniemenkatu 1, 00100 Helsinki
Tilatyyppi
Toimistotilaa
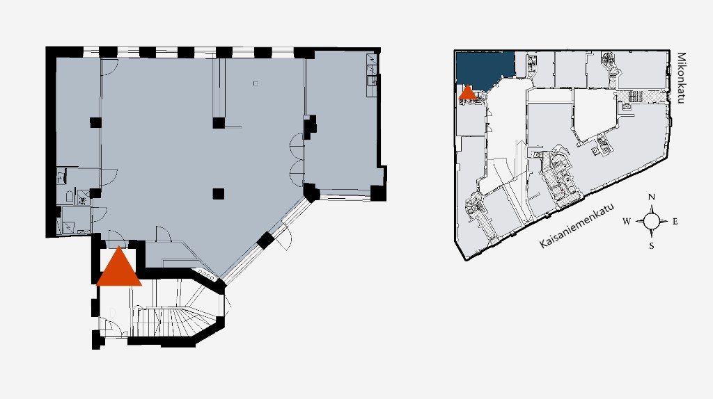
179 m2
Liiketilaa
179 m2
Yhteensä
179 m2
Muuta
Vuokrataan erinomaisella sijainnilla toimisto- ja liiketilaa Kaisaniemestä. Vuokrattava tila on katutason 179 m² toimisto-liiketila.
Kiinteistö Kaisaniemenkatu 1 sijainti on erinomainen aivan Helsingin keskustan ytimessä. Julkisen liikenteen palvelut ovat välittömästi kohteen vieressä: Päärautatieasema ja metro ovat vain 5 minuutin kävelymatkan päässä. Oman auton käyttäjiä palvelee lukuisat maksulliset pysäköintihallit. Myös lukuisat ravintolat ja lähikauppojen sekä kauppakeskusten palvelut ovat lyhyen kävelymatkan päässä.
Sisäkuvat ovat yleiskuvia Kaisaniemenkatu 1 kiinteistöstä
Tervetuloa tutustumaan! Varaathan välittäjältä oman esittelyaikasi. Kysy meiltä muitakin juuri teille sopivia vaihtoehtoja - meidän kautta saat täysin teidän tarpeisiinne räätälöidyt tilat. Palvelumme on tilanhakijalle veloitukseton!
Kiinteistö Kaisaniemenkatu 1 sijainti on erinomainen aivan Helsingin keskustan ytimessä. Julkisen liikenteen palvelut ovat välittömästi kohteen vieressä: Päärautatieasema ja metro ovat vain 5 minuutin kävelymatkan päässä. Oman auton käyttäjiä palvelee lukuisat maksulliset pysäköintihallit. Myös lukuisat ravintolat ja lähikauppojen sekä kauppakeskusten palvelut ovat lyhyen kävelymatkan päässä.
Sisäkuvat ovat yleiskuvia Kaisaniemenkatu 1 kiinteistöstä
Tervetuloa tutustumaan! Varaathan välittäjältä oman esittelyaikasi. Kysy meiltä muitakin juuri teille sopivia vaihtoehtoja - meidän kautta saat täysin teidän tarpeisiinne räätälöidyt tilat. Palvelumme on tilanhakijalle veloitukseton!
Vapautuu
Kysy
Kerros
1
Ota yhteyttä
Tuloskiinteistöt Oy
Rikhardinkatu 2 B 5, 00130 Helsinki
Näytä puhelinnumero
(09) 6841 620
Jorma Ryynänen
Commercial Real Estate Advisor LKV, LVV
Näytä puhelinnumero
+358 40 708 4064
Nina Meyke
Commercial Real Estate Advisor
Näytä puhelinnumero
+358 50 466 1519
Pyydä lisätietoa
