Vuokrataan toimistotilat - Helsinki
Tyynenmerenkatu 6, Jätkäsaari, 00220 Helsinki #10771473
Huipputyylikäs ja moderni 348 m² toimistotila vanhan makasiinirakennuksen 2. kerroksesta, loistosijainnilta Jätkäsaaresta.
Osoite
Tyynenmerenkatu 6, 00220 Helsinki
Tilatyyppi
Toimistotilaa
348 m2
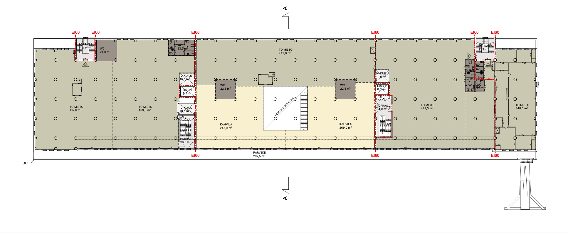
Pohjapiirros
Kiinteistö
Toisen kerroksen huoneista ja avotilasta koostuva 348 m² toimisto, Jätkäsaaren vanhimman rakennuksen, L3 Makasiinin entisissä varastotiloissa. Tilat on muokattu huippumoderniin muotoon. Ilmoituksen kuvat ovat yleiskuvia rakennuksen tunnelmaa kuvastamaan.
Yhteensä 10 000 neliömetriä 4:ssä eri kerroksessa.
Lars Sonckin suunnittelema ja vuonna 1924 valmistunut L3 Makasiini on Jätkäsaaren vanhin rakennus. Rakennuksen päädyssä oleva nosturi jää muistoksi alueen ja kiinteistön aiemmasta käytöstä.
Jätkäsaari on urbaani, merellinen kaupunginosa. Tiheä rakentaminen, suojaisat umpikujat ja kivijalkakaupat luovat Jätkäsaarelle kantakaupungin ilmeen. Erityisesti nuorempi sukupolvi on löytänyt Jätkäsaaren kotiseudukseen.
Uusi koti 21 000 asukkaalle ja yli 6 000 työntekijöille valmistuessaan 2020-luvun lopulla.
Blue-chip-teknologiayritykset, kuten WithSecure ja Supercell, ovat jo sijoittaneet pääkonttorinsa Jätkäsaareen.
Jätkäsaaressa sijaitsee Helsingin ja Tallinnan yhdistävä päämatkustajasatama. Se on yksi Euroopan vilkkaimmista matkustajasatamista.
100 vuotta ja edelleen pystyssä. L3 näkee uuden elämän seuraavien 100 vuoden aikana nykyaikaisilla ja ajantasaisilla ympäristöystävällisillä teknisillä ratkaisuilla. Muun muassa kaukolämpö ja -jäähdytys, energian kierrätys, aurinkopaneelit, vedensäästötoimenpiteet sekä hiilineutraali jätehuolto
Yhteensä 10 000 neliömetriä 4:ssä eri kerroksessa.
Lars Sonckin suunnittelema ja vuonna 1924 valmistunut L3 Makasiini on Jätkäsaaren vanhin rakennus. Rakennuksen päädyssä oleva nosturi jää muistoksi alueen ja kiinteistön aiemmasta käytöstä.
Jätkäsaari on urbaani, merellinen kaupunginosa. Tiheä rakentaminen, suojaisat umpikujat ja kivijalkakaupat luovat Jätkäsaarelle kantakaupungin ilmeen. Erityisesti nuorempi sukupolvi on löytänyt Jätkäsaaren kotiseudukseen.
Uusi koti 21 000 asukkaalle ja yli 6 000 työntekijöille valmistuessaan 2020-luvun lopulla.
Blue-chip-teknologiayritykset, kuten WithSecure ja Supercell, ovat jo sijoittaneet pääkonttorinsa Jätkäsaareen.
Jätkäsaaressa sijaitsee Helsingin ja Tallinnan yhdistävä päämatkustajasatama. Se on yksi Euroopan vilkkaimmista matkustajasatamista.
100 vuotta ja edelleen pystyssä. L3 näkee uuden elämän seuraavien 100 vuoden aikana nykyaikaisilla ja ajantasaisilla ympäristöystävällisillä teknisillä ratkaisuilla. Muun muassa kaukolämpö ja -jäähdytys, energian kierrätys, aurinkopaneelit, vedensäästötoimenpiteet sekä hiilineutraali jätehuolto
Vapautuu
Heti
Kerros
2
Energiatehokkuusluokka
H (ei luokitusta)
Näkyvällä paikalla
Ota yhteyttä
ScanReal Oy LKV
Opus Business Park
Hitsaajankatu 24
00810 Helsinki
info@scanreal.fi
Puh:
Näytä puhelinnumero
020 730 8830
Sopivat toimitilat yhdellä otolla!
Kartoitamme toimitilatarpeesi ja etsimme yrityksellesi parhaiten sopivat vapaat toimitilat. Koska vuokranantajat maksavat palvelumme, on tämä yrityksellesi veloituksetonta.
OTA YHTEYTTÄ - SOVI NÄYTTÖ!
Kaikki kohteemme eivät ole netissä, kerro tilatarpeesi niin kartoitamme vaihtoehdot.
Palvelumme on tilanhakijalle ilmainen
Pyydä lisätietoa
