Vuokrataan toimistotilat, liiketilat - Lappeenranta
Puutarhurinkatu 3, Keskusta, 53100 Lappeenranta #10771466
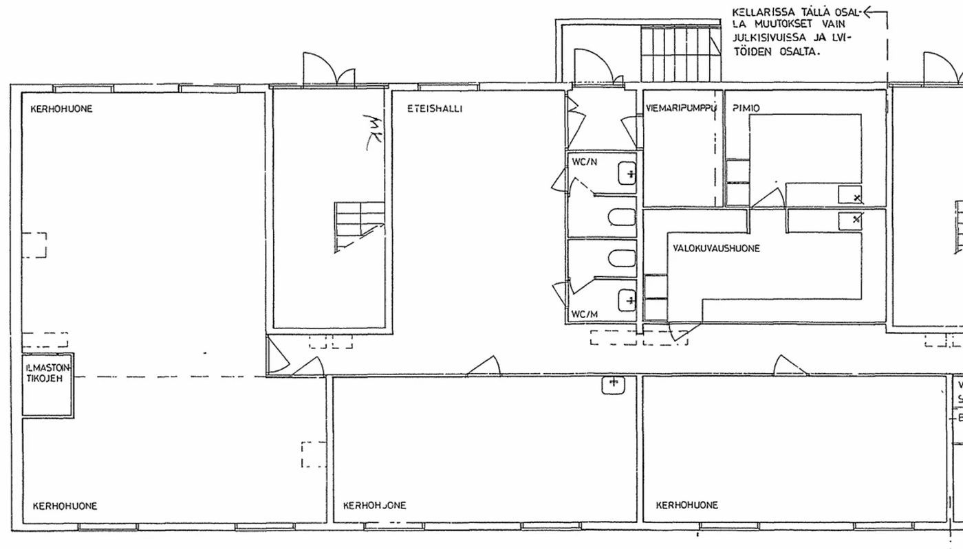
Puutarhurinkatu 3 on asuinkiinteistö, jonka kivijalassa on vuokrattavaa liiketilaa. Se sijaitsee hyvällä paikalla Lappeenrannassa, aivan rautatieaseman vieressä ja kävelymatkan päässä keskustasta.
Lisätiedot ja kohde-esittelyt 020 7290 710, lisää kohteita premises.fi
Kohteella ei ole lain edellyttämää energiatodistusta tai energialuokka ei tiedossa.Kerros: 0
Osoite
Puutarhurinkatu 3, 53100 Lappeenranta
Tilatyyppi
Toimistotilaa
264 m2
Liiketilaa
264 m2
Yhteensä
264 m2
Ota yhteyttä
CRE PREMISES
Puh. Näytä puhelinnumero 020 7290 710
Vantaankoskentie 14
01670 VANTAA
Pyydä lisätietoa
