Vuokrataan liiketilat - Jyväskylä
Keskustie 17, 40100 Jyväskylä #10771465
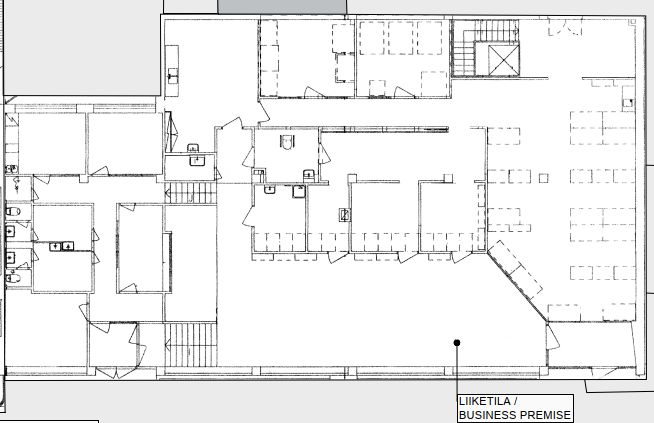
Vuokrattava liiketila on kooltaan 440m2.
Keskustie 17 on asuinkiinteistö Jyväskylän keskustassa. Sen kivijalassa on vuokrattavia liiketiloja. Kiinteistö sijaitsee Jyväskylän keskustan palveluiden sekä kulttuuri- ja harrastusmahdollisuuksien välittömässä läheisyydessä. Lähin bussipysäkki sijaitsee muutaman sadan metrin päässä ja Matkakeskukseen matkaa on noin kilometri. Jyväsjärven sekä Harjun kauniit maisemat ja ulkoilumahdollisuudet ovat helposti saavutettavissa.
Lisätietoja numerosta 020 7290 710. Lisää kohteita osoitteessa www.premises.fi.
Kohteella ei ole lain edellyttämää energiatodistusta tai energialuokka ei tiedossa.Kerros: 1
CRE PREMISES
Puh. Näytä puhelinnumero 020 7290 710
Vantaankoskentie 14
01670 VANTAA
