Vuokrataan liiketilat, tuotantotilat, varastotilat - Raisio
Tuotekatu 13, Hauninen, 21200 Raisio #10771337
Liike- ja tuotantotilaa Raision Haunisissa
Osoite
Tuotekatu 13, 21200 Raisio
Tilatyyppi
Liiketilaa
2500 m2
Tuotantotilaa
2500 m2
Varastotilaa
2500 m2
Yhteensä
2500 m2
Pysäköinti
pihalla
Muuta
Sopimuksen mukaan vapautuvaa liike- ja varastotilaa Haunisista, vilkkaalta Tuotekadun varrelta.
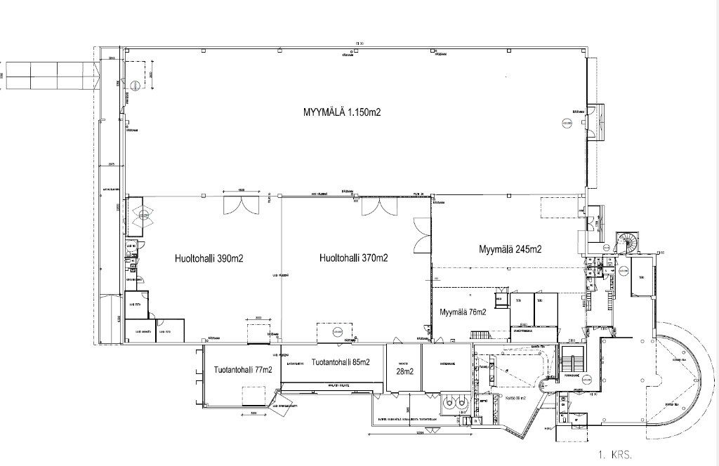
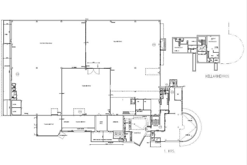
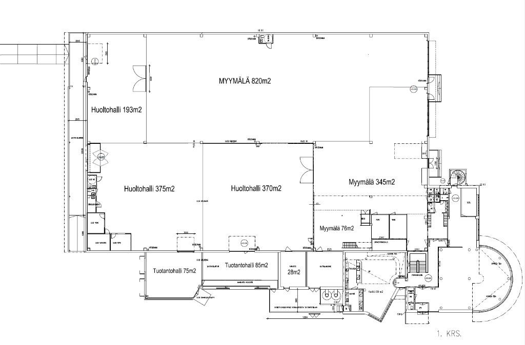
Vuokrattavat tilat:
Myymälätila n.930m2, joka suurimmaksi osaksi avotilaa, lisäksi
kaksi toimistohuonetta, sosiaalitilat sekä wc:t.
Varastotilaa n.1485m2
Varasto-osa on nyt jaettu n.3 eri kokoiseen tilaan.
Suurimmasta tilasta löytyy muutama kevytrakenteinen toimistohuone, wc:t, sekä keittiö.
Kiinteistöstä löytyy lastauslaituri sekä kaksi lastaustaskua. Nosto-ovia on mahdollista lisätä.
Lisäksi vuokrattavana on keittiö- ja sosiaalitilat alakerrasta.
Tiloja on mahdollista yhdistää tai vuokrata erikseen, pohjakuvista näkee jakoehdotuksen.
Vuokrattavat tilat:
Myymälätila n.930m2, joka suurimmaksi osaksi avotilaa, lisäksi
kaksi toimistohuonetta, sosiaalitilat sekä wc:t.
Varastotilaa n.1485m2
Varasto-osa on nyt jaettu n.3 eri kokoiseen tilaan.
Suurimmasta tilasta löytyy muutama kevytrakenteinen toimistohuone, wc:t, sekä keittiö.
Kiinteistöstä löytyy lastauslaituri sekä kaksi lastaustaskua. Nosto-ovia on mahdollista lisätä.
Lisäksi vuokrattavana on keittiö- ja sosiaalitilat alakerrasta.
Tiloja on mahdollista yhdistää tai vuokrata erikseen, pohjakuvista näkee jakoehdotuksen.
Vapautuu
Kysy
Kerros
Katutaso
Ota yhteyttä
Tuloskiinteistöt Oy
Kauppiaskatu 11 C 23, 20100 Turku
Näytä puhelinnumero
(02) 274 3500
Ritva Nuotio
Commercial Real Estate Advisor LKV, KED
Näytä puhelinnumero
+358 50 5261 744
Karoliina Eklund
Leasing Support Specialist
Näytä puhelinnumero
+358 40 017 8999
Pyydä lisätietoa
