Vuokrataan toimistotilat, näyttelytilat - Vantaa
Kalske Business Park, Taivaltie 5, Kaivoksela, 01610 Vantaa #10771327
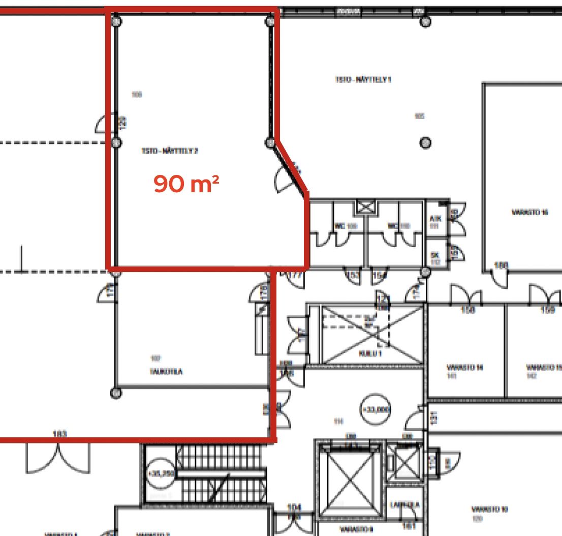
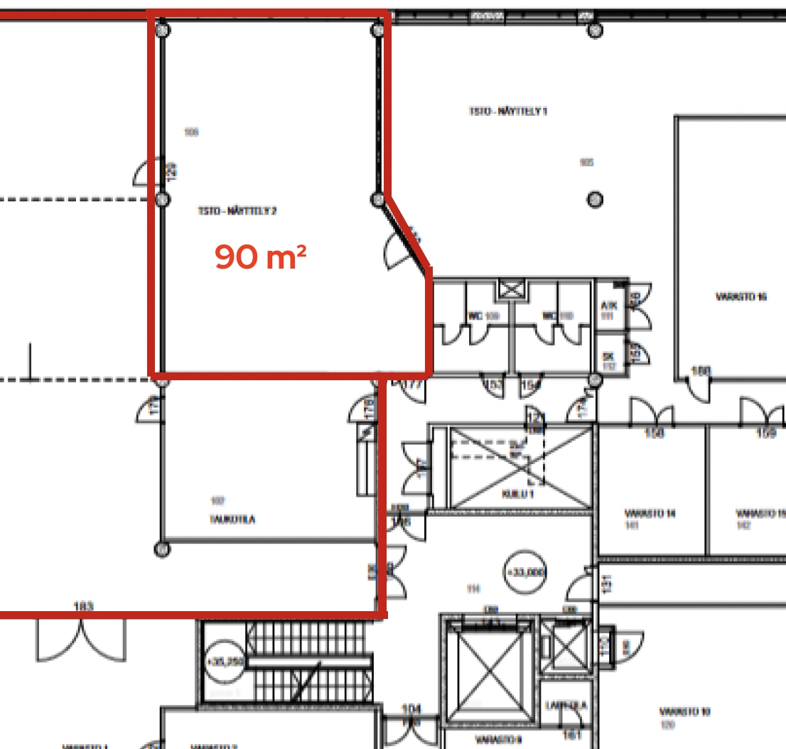
Siisti ja moneen käyttöön muovautuva 90 m² toimisto modernissa Business Parkissa Kaivokselassa
Osoite
Taivaltie 5, 01610 Vantaa
Tilatyyppi
Toimistotilaa
90 m2
Näyttelytilaa
90 m2
Yhteensä
90 m2
Pohjapiirros
Kiinteistö
Ensimmäisen kerroksen hyväpohjainen avonainen toimisto, joka soveltuu mainiosti myös esim. näyttelytilaksi.
Kalske Business Park tarjoaa modernit ja toimintaan mukautuvat tilat toimistotyöskentelylle halusitpa perinteisempää huonetoimistoa tai nykyaikaista monitilatoimistoa. Tilat muokkautuvat nopeasti ja kivuttomasti em. tarpeisiin.
Löydät talosta tilat myös kevyelle tuotantotoiminnalle sekä trukkiliikenteellekin sopivat varastotilat em. toimintoja tukemaan tai päinvastoin. Talon IT-verkko sekä turvallisuus on auditoitu ja saanut erityistä kiitosta.
Tilaratkaisut ja sisustus ovat positiivisesti erilaiset tavanomaisiin business parkeihin verrattuna. Talosta löytyy myös kuntosali, edustustilat sekä persoonalliset korkealuokkaiset saunatilat sekä naisille että miehille. Neuvottelutilaa on tarjottavana muutaman hengen palavereista aina 30 hengen koulutus- ja seminaaritapahtumiin. Kaikkiin saat ruoka- ja juomatarjoilun paikan päältä ammattilaisten toteuttamana.
Jos asiakkaasi tai yrityksen muu henkilöstö viipyy vierailulla yön yli, löytyy lähin kansainvälinen hotelliketju runsaan 5 minuutin ajomatkan päästä.
Sinut otetaan joka päivä vastaan vastaanoton toimesta lämpimästi ja ongelmatilanteissa autamme sinua.
Rakennus on valmistunut 2001. Rakennuksen suunnittelun lähtökohtana oli sen elinkaaren aikainen muunneltavuus helposti ja nopeasti aina kulloisenkin käyttäjän tarpeisiin. Siinä tavoitteessa on onnistuttu hyvin.
Kalske Business Park tarjoaa modernit ja toimintaan mukautuvat tilat toimistotyöskentelylle halusitpa perinteisempää huonetoimistoa tai nykyaikaista monitilatoimistoa. Tilat muokkautuvat nopeasti ja kivuttomasti em. tarpeisiin.
Löydät talosta tilat myös kevyelle tuotantotoiminnalle sekä trukkiliikenteellekin sopivat varastotilat em. toimintoja tukemaan tai päinvastoin. Talon IT-verkko sekä turvallisuus on auditoitu ja saanut erityistä kiitosta.
Tilaratkaisut ja sisustus ovat positiivisesti erilaiset tavanomaisiin business parkeihin verrattuna. Talosta löytyy myös kuntosali, edustustilat sekä persoonalliset korkealuokkaiset saunatilat sekä naisille että miehille. Neuvottelutilaa on tarjottavana muutaman hengen palavereista aina 30 hengen koulutus- ja seminaaritapahtumiin. Kaikkiin saat ruoka- ja juomatarjoilun paikan päältä ammattilaisten toteuttamana.
Jos asiakkaasi tai yrityksen muu henkilöstö viipyy vierailulla yön yli, löytyy lähin kansainvälinen hotelliketju runsaan 5 minuutin ajomatkan päästä.
Sinut otetaan joka päivä vastaan vastaanoton toimesta lämpimästi ja ongelmatilanteissa autamme sinua.
Rakennus on valmistunut 2001. Rakennuksen suunnittelun lähtökohtana oli sen elinkaaren aikainen muunneltavuus helposti ja nopeasti aina kulloisenkin käyttäjän tarpeisiin. Siinä tavoitteessa on onnistuttu hyvin.
Vapautuu
Heti
Rakennusvuosi
2001
Kerros
1 / 4
Energiatehokkuusluokka
Ei lain edellyttämää energiatodistusta
Katutasossa
Hissi
Ota yhteyttä
ScanReal Oy LKV
Opus Business Park
Hitsaajankatu 24
00810 Helsinki
info@scanreal.fi
Puh:
Näytä puhelinnumero
020 730 8830
Sopivat toimitilat yhdellä otolla!
Kartoitamme toimitilatarpeesi ja etsimme yrityksellesi parhaiten sopivat vapaat toimitilat. Koska vuokranantajat maksavat palvelumme, on tämä yrityksellesi veloituksetonta.
OTA YHTEYTTÄ - SOVI NÄYTTÖ!
Kaikki kohteemme eivät ole netissä, kerro tilatarpeesi niin kartoitamme vaihtoehdot.
Palvelumme on tilanhakijalle ilmainen
Pyydä lisätietoa
