Vuokrataan toimistotilat, tuotantotilat, varastotilat, työtilat - Raasepori
Mustion Ruukki – Svartå Bruk, Hållsnäsintie 99, 10360 Raasepori #10771168
Edullista, nykyaikaista, muuneltavaa tuotanto-, logistiikka- ja varastotilaa historiallisessa Mustion Ruukissa 1500 – 8300 m² +
toimistotilaa 500 m².
Osoite
Hållsnäsintie 99, 10360 Raasepori
Tilatyyppi
Toimistotilaa
100 - 500 m2
Tuotantotilaa
7458 m2
Varastotilaa
7458 m2
Työtilaa
7458 m2
Yhteensä
7458 m2
Tilajako
Jaettavissa
Vuokrattavat tilakoot:
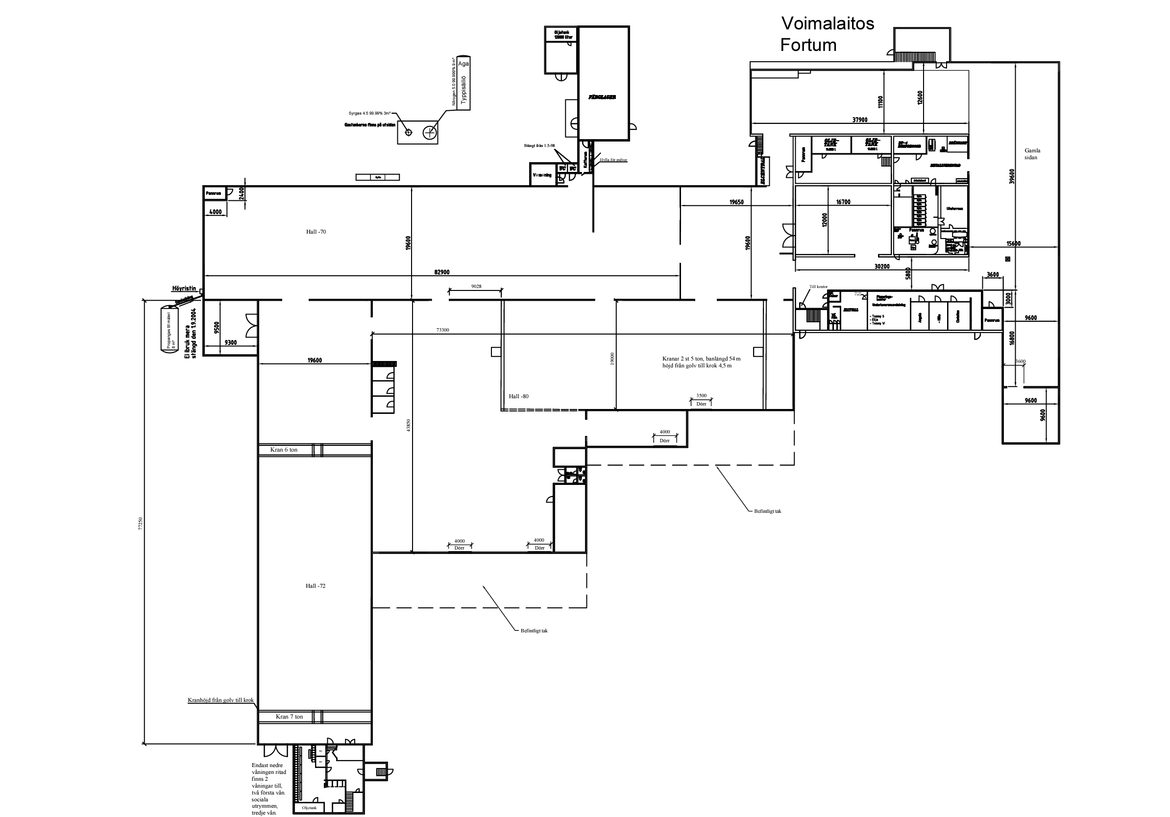
920 m² • 1370 m² • 1514 m² • 2084 m² • 2214 m² • 2990 m² • 5074 m² • 7458 m² • 8300 m².
Tiloja voidaan jakaa ja yhdistää. Toimistotilaa saatavana tarpeen mukaan toimistosiivestä tai rakennettavissa tuotantotilojen yhteyteen.
Pohjapiirros
Virtuaaliesittely
Tila soveltuu
Tulityötila
Vuokra
4,5 € / m² / kk
Vuokraan sisältyy lämpö
Kiinteistö
Mustion Ruukki – Svartå Bruk on ainutlaatuinen ja historiallinen kohde Mustion Linnan vieressä ja alueella on pitkä vuosisatainen historia teollisuudessa.
VUOKRATTAVAT TILAKOOT:
920 m² • 1370 m² • 1514 m² • 2084 m² • 2214 m² • 2990 m² • 5074 m² • 7458 m² • 8300 m².
TOIMISTOT:
100 – 500 m² tarpeen mukaan.
Tiloja voidaan jakaa ja yhdistää. Toimistotilaa saatavana tarpeen mukaan toimistosiivestä tai rakennettavissa tuotantotilojen yhteyteen.
Tilat ovat käyttövalmiit useisiin käyttötarkoituksiin ja tarvittaessa modernisoitavissa vastaamaan käyttäjän erityistarpeita.
TÄRKEIMMÄT OMINAISUUDET:
• Korkeat nosto-ovet
• Rekalla tai isommalla autolla suoraan sisään
• Tilat muunneltavissa useaan eri tarpeeseen
• Reilusti pysäköintitilaa – Asfaltoitu piha-alue
• Piha-alueelle saatavilla varastointitilaa
• Kiinteistö koostuu uudemmasta ja vanhemmasta osasta, jotka ovat moderisoitavissa tarpeidenne mukaan
• Tiloissa kaksi 5t nostinta sekä 6t ja 7t nostimet.
VUOKRATTAVAT TILAKOOT:
920 m² • 1370 m² • 1514 m² • 2084 m² • 2214 m² • 2990 m² • 5074 m² • 7458 m² • 8300 m².
TOIMISTOT:
100 – 500 m² tarpeen mukaan.
Tiloja voidaan jakaa ja yhdistää. Toimistotilaa saatavana tarpeen mukaan toimistosiivestä tai rakennettavissa tuotantotilojen yhteyteen.
Tilat ovat käyttövalmiit useisiin käyttötarkoituksiin ja tarvittaessa modernisoitavissa vastaamaan käyttäjän erityistarpeita.
TÄRKEIMMÄT OMINAISUUDET:
• Korkeat nosto-ovet
• Rekalla tai isommalla autolla suoraan sisään
• Tilat muunneltavissa useaan eri tarpeeseen
• Reilusti pysäköintitilaa – Asfaltoitu piha-alue
• Piha-alueelle saatavilla varastointitilaa
• Kiinteistö koostuu uudemmasta ja vanhemmasta osasta, jotka ovat moderisoitavissa tarpeidenne mukaan
• Tiloissa kaksi 5t nostinta sekä 6t ja 7t nostimet.
Sijainti
Mustion Ruukki sijaitsee keskeisellä paikalla Länsi-Uusimaalla, valtatie 25:n varressa, joka mahdollistaa hyvät kulkuyhteydet logistiikalle ja työntekijöille.
ETÄISYYKSIÄ:
• Helsinki 75 km
• Espoo 56 km
• Hanko 67 km
• Inkoo 20 km
• Lohja 23 km
• Tammisaari 34 km
• Salo 52 km
• Kirkkonummi 45 km
• Nummela 41 km
• Turku 107 km
ETÄISYYKSIÄ:
• Helsinki 75 km
• Espoo 56 km
• Hanko 67 km
• Inkoo 20 km
• Lohja 23 km
• Tammisaari 34 km
• Salo 52 km
• Kirkkonummi 45 km
• Nummela 41 km
• Turku 107 km
Ympäristö
Mustion Ruukki – Svartå Bruk
Kustaa Vaasa perusti Mustionjoen varrelle Suomen ensimmäisen rautaruukin vuonna 1561. Tästä alkoi Mustion vuositatainen teollisuusperinne. Mustiossa on ollut jatkuvaa teollisuutta yli 400 vuotta.
Kustaa Vaasa perusti Mustionjoen varrelle Suomen ensimmäisen rautaruukin vuonna 1561. Tästä alkoi Mustion vuositatainen teollisuusperinne. Mustiossa on ollut jatkuvaa teollisuutta yli 400 vuotta.
Pysäköinti
Suurella piha-alueella runsaasti pysäköintitilaa.
Muuta
Vuokraa suoraan omistajalta ilman välikäsiä! Tarjoamme sinulle helpon ja suoraviivaisen vuokrauskokemuksen. Autamme toimitiloihinne liittyvissä haasteissa ja etsimme yhdessä ratkaisun.
Järjestämme näytön jopa samalle päivälle! Palvelemme suomeksi, ruotsiksi ja englanniksi.
Lupaamme, että vuokrauskokemus on helppo ja suoraviivainen
1. Kerro meille tarpeesi
2. Valitaan sopiva tila tai tilakokonaisuus
3. Suunnitellaan tilan ominaisuudet ja varustelu
4. Sovitaan vuokra-aika
5. Saat kiinteän kk-hinnan
6. Sopimus jopa samana päivänä
7. Muuttopäivä tiedossa heti
Tutustu tarkemmin kohteeseen osoitteessa www.svartabruk.fi
Järjestämme näytön jopa samalle päivälle! Palvelemme suomeksi, ruotsiksi ja englanniksi.
Lupaamme, että vuokrauskokemus on helppo ja suoraviivainen
1. Kerro meille tarpeesi
2. Valitaan sopiva tila tai tilakokonaisuus
3. Suunnitellaan tilan ominaisuudet ja varustelu
4. Sovitaan vuokra-aika
5. Saat kiinteän kk-hinnan
6. Sopimus jopa samana päivänä
7. Muuttopäivä tiedossa heti
Tutustu tarkemmin kohteeseen osoitteessa www.svartabruk.fi
Lisätietoa saneerauksista
Tilat muunneltavissa ja moderisoitavissa vuokralaisen tarpeen mukaan.
Vapautuu
Heti
Rakennusvuosi
1980
Saneerausvuosi
2024
Kerros
1 / 2
Katutasossa
Jaettavissa
Ota yhteyttä
Svartå Bruk Holding Oy
Suunnittelu ja vuokraus
Niko Flythstöm
Näytä puhelinnumero
045 132 9670
Pyydä lisätietoa