Vuokrataan varastotilat - Espoo
Koskelontie 13, Koskelo, 02920 Espoo #10770657
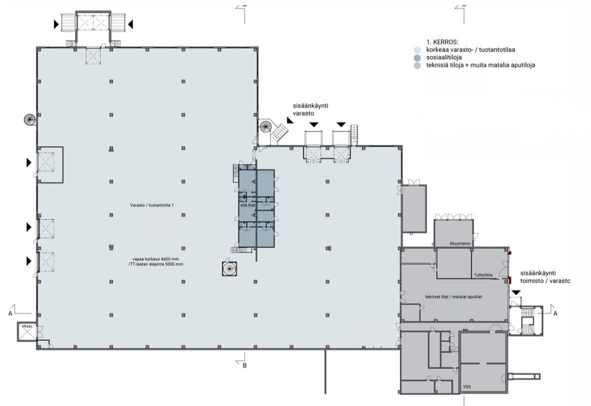
Vuokrataan tuotantoon ja varastointiin soveltuva kiinteistö Koskelosta. 7100m2 varasto- ja tuotantotilaa, joka jakautuu kahteen päällekkäiseen kerrokseen. Useita lastaustaskuja ja nosto-ovia. Varastotilojen vapaa korkeus n. 4,6 metriä. Sisäänajomahdollisuus molempiin kerroksiin.
Lisäksi toimistotilaa n. 800m2. Sosiaalitiloja sekä ravintolatilaa n. 300m2. Osa ilmoituksen kuvista on arkkitehdin havainnekuvia. Tila on heti vapaana.
Keskeinen sijainti Kehä III:n välittömässä läheisyydessä takaa nopeat yhteydet kaikille pääväylille.
Lisätietoja soita 020 730 4530 tai info@repoint.fi. Palvelumme on tilanhakijalle ilmainen.
Repoint Toimitilat Oy
Itälahdenkatu 22 B, 00210 Helsinki
Näytä puhelinnumero
020 730 4530
Lisätietoja soita Näytä puhelinnumero 020 730 4530 tai info@repoint.fi
https://repoint.fi/