Vuokrataan tuotantotilat, varastotilat - Raisio
Tuotekatu 13, Hauninen, 21200 Raisio #10770588
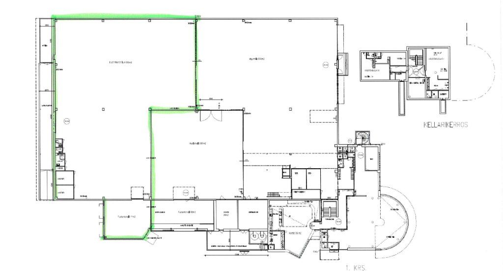
Varasto/ Logistiikkatilaa Raision Haunisissa
Osoite
Tuotekatu 13, 21200 Raisio
Tilatyyppi
Tuotantotilaa
1007 m2
Varastotilaa
1007 m2
Yhteensä
1007 m2
Vuokra
8056 e
Pysäköinti
pihalla
Muuta
Heti vapaana olevaa siistiä, hyvä kuntoista varasto/logistiikkatilaa Raision Haunisissa, hyvällä piha-alueella.
Lastauslaiturilta yksi nosto-ovi, nosto-ovia on mahdollista tehdä lisää. Nosto-oven lisäksi löytyy kaksi lastaustaskua sekä yksi maantasolla oleva pariovi.
Tilasta löytyy toimisto/sosiaalitilaa.
Varastoa on mahdollisuus laajentaa.
Tervetuloa tutustumaan, varaathan välittäjältä oman esittelyaikasi. Voit kysyä meiltä myös muita sopivia vaihtoehtoja, kauttamme löydät juuri Teidän tarpeisiinne sopivat tilat. Palvelumme on tilanhakijalle veloitukseton!
Lastauslaiturilta yksi nosto-ovi, nosto-ovia on mahdollista tehdä lisää. Nosto-oven lisäksi löytyy kaksi lastaustaskua sekä yksi maantasolla oleva pariovi.
Tilasta löytyy toimisto/sosiaalitilaa.
Varastoa on mahdollisuus laajentaa.
Tervetuloa tutustumaan, varaathan välittäjältä oman esittelyaikasi. Voit kysyä meiltä myös muita sopivia vaihtoehtoja, kauttamme löydät juuri Teidän tarpeisiinne sopivat tilat. Palvelumme on tilanhakijalle veloitukseton!
Vapautuu
Kysy
Ota yhteyttä
Tuloskiinteistöt Oy
Kauppiaskatu 11 C 23, 20100 Turku
Näytä puhelinnumero
(02) 274 3500
Ritva Nuotio
Commercial Real Estate Advisor LKV, KED
Näytä puhelinnumero
+358 50 5261 744
Karoliina Eklund
Leasing Support Specialist
Näytä puhelinnumero
+358 40 017 8999
Pyydä lisätietoa
