Myydään toimistotilat - Helsinki
Turunlinnantie 14, Itäkeskus, 00930 Helsinki #10770402
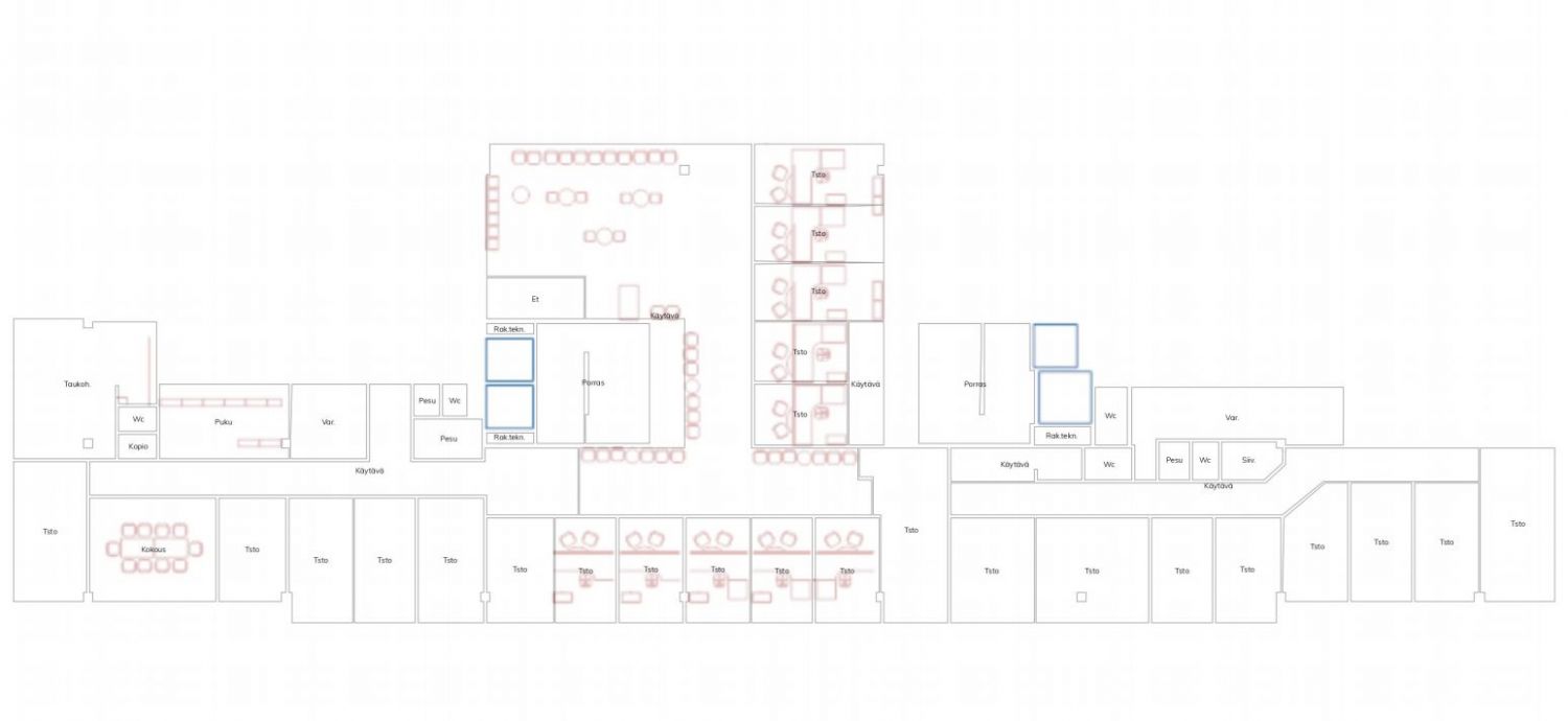
Keskeisellä sijainnilla oleva hyvä toimistokokonaisuus myydään osittain vuokrattuna. Vuokrattu pinta-ala on todella pitkäaikaisella vuokrasopimuksella on 491 m2 ja vapaana olevaa vuokrattavaa tilaa on 225 m2.
Kiinteistö sijaitsee huippupaikalla aivan Itäkeskuksen palveluiden äärellä ja metron vieressä Tallinnanaukiolla. Tila koostuu eri kokoisista huoneista ja neuvottelutiloista, lisäksi toimistossa on omat sosiaali- ja wc-tilat. Kellarissa pysäköintitilaa.
Työntekijöiden arkea helpottavat loistavat liikenneyhteydet autolla sekä metrolla. Ravintoloita ja muita palveluita, kuten kuntosali löytyy välittömästä läheisyydestä.
Lisätietoja 0400 891 057 tai 020 7290 710 ja lisää kohteita premises.fi
Kohteella ei lain edellyttämää energiatodistusta tai energialuokka ei tiedossa.Kerros: 3
Liitetiedostot
CRE PREMISES
Puh. Näytä puhelinnumero 020 7290 710
Vantaankoskentie 14
01670 VANTAA
