Vuokrataan varastotilat - Helsinki
Pulttitie 14, Roihupelto, 00880 Helsinki #10770334
Vuokrattavana asiallista varastotilaa.
Osoite
Pulttitie 14, 00880 Helsinki
Tilatyyppi
Varastotilaa
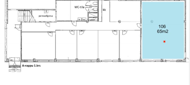
65 m2
Kiinteistö
Roihupellossa vuokrattavana asiallista varastotilaa. Tilat voidaan muokata asiakkaan tarpeen pohjalta.
Sijainti
Roihupelto, Helsinki
Pysäköinti
Kiinteistön pihalla autopaikkoja ja kadunvarrella.
Palvelut
Alueella lounasravintoloita.
Kulkuyhteydet
-Bussi
-Oma auto
-Oma auto
Vapautuu
Heti
Kerros
1
Energiatehokkuusluokka
Ei lain edellyttämää energiatodistusta
Hissi
Ota yhteyttä
REALIUM OY LKV
Tammasaarenkatu 1, 00180 Helsinki
Vaihde:
Näytä puhelinnumero
010 326 346
Tuomo Mäkelä
tuomo.makela@realium.fi
p.
Näytä puhelinnumero
044 050 1158
Joel Keto
joel.keto@realium.fi
p.
Näytä puhelinnumero
045 317 0330
KAIKKI TILAVAIHTOEHDOT KERRALLA!
SOITA - MEILAA JA TILAA NÄYTTÖ!
Ilmainen palvelu tilanhakijoille.
Kartoitamme parhaat tilavaihtoehdot.
Kaikki kohteet eivät ole netissä.
Pyydä lisätietoa
