Vuokrataan toimistotilat - Tampere
Hermiankatu 3 A, 33720 Tampere #10770331
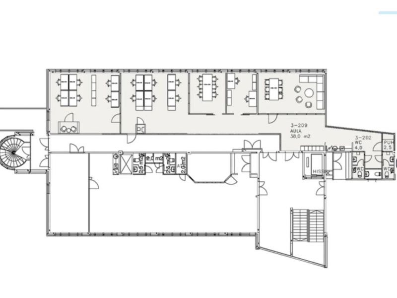
Hermia 10:ssä vuokrattavana 3. kerroksen valoisa toimistotila sisältäen yhden neuvottelutilan.. Kiinteistöstä on sisäyhteys viereiseen Hermia 11 -taloon, jossa on aulapalvelu, lounasravintola, kokoustilat sekä kuntosali. Kampukselta löytyy myös pientoimistoalue Technopolis HUB, joka koostuu 62 pienestä 1–12 hengen tiimeille sopivista toimistotiloista, esimerkiksi projektitiloiksi talon vuokralaisille lyhyemmäksi ajaksi. Ota yhteyttä ja sovi esittely, vuokrauspalvelumme on tilanhakijoille maksuton.
Osoite
Hermiankatu 3 A, 33720 Tampere
Tilatyyppi
Toimistotilaa
222 m2
Pohjapiirros
Kiinteistö
Täyden palvelun Business Park Hermian rakennus 15 on valmistunut 2009 nykyaikaisella talotekniikalla. Yhteensä Technopolis Hermiassa on 39 000 m2 tilaa kasvavien yritysten tarpeisiin.
Sijainti
Technopolis Hermian loistavan sijainnin ansiosta kampukselle on helppo tulla eri suunnista niin autolla, pyörällä, bussilla kuin Tampereen keskustasta raitiovaunulla.
Pysäköinti
Kampuksella on runsaasti pysäköintitilaa.
Palvelut
Samassa talossa muun muassa liikuntakeskus ja Sale–kauppa ja kampuksella on myös kaksi ravintolaa.
Kulkuyhteydet
Raitiovaunupysäkki kampuksella.
Muuta
Hermian kampukselta löydät kaiken mitä yrityksenne ja työntekijänne tarvitsevat arkeen – kampuksen lounasravintoloiden ja kokoushuoneiden lisäksi alueen palveluihin kuuluvat mm. ruokakauppa ja Liikku-liikuntakeskus. Technopolikselta saat hankittua kaikki tarvitsemasi palvelut siivouksesta toimiston suunnitteluun ja kalusteiden hankintaan.
Vapautuu
Heti
Kerros
3
Ota yhteyttä
Senaatin Notariaatti Oy LKV
Lämmittäjänkatu 4 A
FIN-00880 Helsinki
Tel:
Näytä puhelinnumero
+358 9 7745 100
Pyydä lisätietoa
