Vuokrataan varastotilat - Espoo
Koskelontie 21-25, Koskelo, 02920 Espoo #10770066
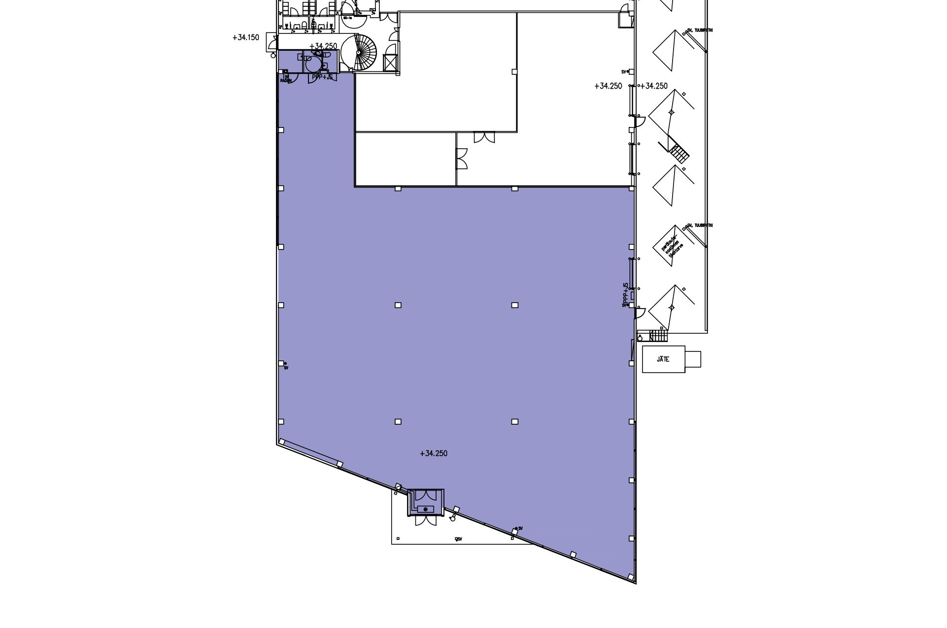
Koskelo Trade Parkin korkeaa varasto, vapaa korkeus 8,9 m, nosto-ovi lastauslaiturille. Soveltuu myös hyvin myymäläksi sillä ikkunat Kehä III:n suuntaan jonne maanmainio näkyvyys brändillesi.
Kohde on retail-logistiikkakiinteistö loistavalla sijainnilla Espoon Koskelossa. Täältä on mahdollista saada siistit toimisto- ja korkeat varastotilat saman katon alta. Parkkipaikkoja ja pihatilaa löytyy. Tilojen muokkaus tulevalle käyttäjälle mahdollista.
Croisette on uusi ja innovatiivinen toimitilojen välitysyritys Suomessa. Meillä on vahva halu auttaa teitä löytämään paras toimitilaratkaisu mahdollisimman vaivattomasti.
Huomaathan, että kaikki vapaat ja vapautuvat tilat ovat kauttamme saatavilla. Osa tiloista on hiljaisessa markkinoinnissa, mutta ottamalla meihin yhteyttä saat nekin tietoosi.
Palvelumme on tilanhakijoille täysin maksutonta.
Croisette Real Estate Partner
Erottajankatu 5 A 6, 00130 Helsinki
Näytä puhelinnumero
+358 400 585 857
Croisette Vuokraus
Näytä puhelinnumero
+358400585857
