Vuokrataan toimistotilat, liiketilat, näyttelytilat, työtilat - Oulu
Meritullinraitti 1 LT2, 90100 Oulu #10770038
Vuokrataan siistissä kunnossa oleva liike-/toimistokäyttöön sopiva huoneisto Oulun kauppahallia vastapäätä! Isot näyteikkunat kauppahallille päin.
Paikka ja sijainti ovat upeat varsinkin kesäaikaan. Ydinkeskustankin palvelut kiven heiton päässä.
Osoite
Meritullinraitti 1 LT2, 90100 Oulu
Tilatyyppi
Toimistotilaa
38 m2
Liiketilaa
38 m2
Näyttelytilaa
38 m2
Työtilaa
38 m2
Yhteensä
38 m2
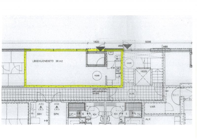
Tilajako
Selkeä suorakaiteen muotoinen huoneisto joka koostuu avotilasta n. 30m² ja sos.tiloista n. 8m².
Pohjapiirros
Vuokra
850,00€/kk +alv, lisäksi käyttösähkö ja vesi
Vuokraan sisältyy lämpö
Pysäköinti
Saatavana 1 autohallipaikka 80€/kk
Palvelut
Kauppahalli, kauppatori ja K-market sekä ydinkeskusta kivenheiton päässä
Kulkuyhteydet
Bussit Torikatua pitkin
Vapautuu
01.09.2026
Kerros
1 / 5
Katutasossa
Näkyvällä paikalla
Liitetiedostot
Ota yhteyttä
Pohjois-Suomen Toimitilat Oy
Sepänkatu 20, 90100 Oulu
Pekka Valkola
Näytä puhelinnumero
044 311 0555
Pyydä lisätietoa
