Vuokrataan liiketilat - Oulu
Karhuojantie 2, Oulunsalo, 90460 Oulu #10770001
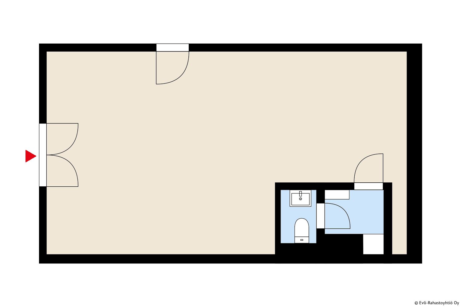
Vuokrattavissa siisti liiketila Kauppakeskus Kapteenin toisesta kerroksesta. Kauppakeskus Kapteeni sijaitsee vilkkaasti liikennöidyn Lentokentäntien varressa Oulunsalon keskustassa ja tavoittaa runsaasti lentoasemalla asioivia sekä alueen lukuisissa yrityksissä työskenteleviä. Ota yhteyttä ja kysy lisätietoja tästä tilasta!
Osoite
Karhuojantie 2, 90460 Oulu
Tilatyyppi
Liiketilaa
50 m2
Kiinteistö
Kauppakeskus Kapteeni
Pysäköinti
Kauppakeskuksen pihapysäköintialueella on runsaasti pysäköintipaikkoja.
Palvelut
Henkilöstöravintola, kuntosali
Muuta
Tilan ominaisuudet: tilassa on ilmastointi
Vapautuu
Heti vapaa
Kerros
2.
Energiatehokkuusluokka
B
Ota yhteyttä
Evli
Aleksanterinkatu 19, 00100 Helsinki
Näytä puhelinnumero
020 155 8610
Saara Raitaranta
Näytä puhelinnumero
040 504 3345
Elina Gröning
Näytä puhelinnumero
041 466 7401
Pyydä lisätietoa
