Vuokrataan toimistotilat - Helsinki
Ruoholahdenkatu 14, Kamppi, 00180 Helsinki #10769995
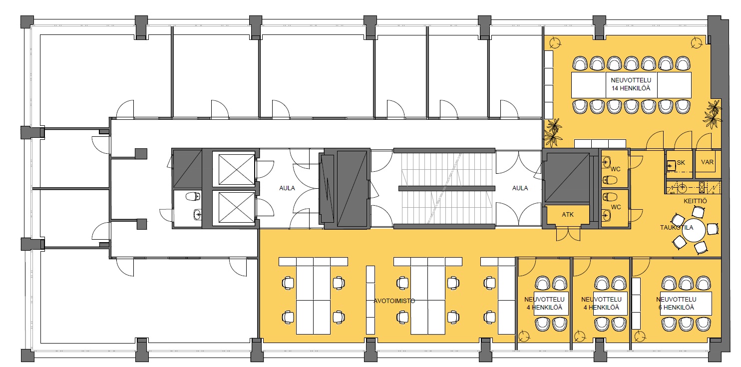
Tämä viidennen kerroksen tila antaa erittäin monipuoliset mahdollisuudet tässä kokoluokassa. L-muotoinen pohja taipuu helposti monitilatoimistoksi eli mukaan saadaan mahtumaan niin ääntä kuin hiljaisuutakin, niin huoneita (oma, tiimi tai kokous) kuin avoakin. Avotilaa on kivasti, kolme työ- tai tiimihuonetta tai vaika Teams-palavereihin, kiva avokeittiö, kaksi wc-tilaa ja kookas kokoushuone tai huone hieman isommalle tiimille. Viidennestä kerroksesta maisematkin ovat jo aika avarat ja upeat.
Kiinteistö sijaitsee mainiolla paikalla Kampissa kohti Ruoholahtea. Yhteydet ovat todella hyvät, Kampin metroasemalle on lyhyt matka, tai raitiovaunun pysäkki löytyy suoraan oven edestä. Lounasvaihtoehtoja on reilusti lähimaastossa ja mm. Hietalahden kauppahallissa niitä on lisää.
Croisette on uusi ja innovatiivinen toimitilojen välitysyritys Suomessa. Meillä on vahva halu auttaa teitä löytämään paras toimitilaratkaisu mahdollisimman vaivattomasti.
Huomaathan, että kaikki vapaat ja vapautuvat tilat ovat kauttamme saatavilla. Osa tiloista on hiljaisessa markkinoinnissa, mutta ottamalla meihin yhteyttä saat nekin tietoosi.
Palvelumme on tilanhakijoille täysin maksutonta.
Hissi
Croisette Real Estate Partner
Erottajankatu 5 A 6, 00130 Helsinki
Näytä puhelinnumero
+358 400 585 857
Croisette Vuokraus
Näytä puhelinnumero
+358400585857
