Vuokrataan liiketilat - Helsinki
Runeberginkatu 63, Töölö, 00260 Helsinki #10769490
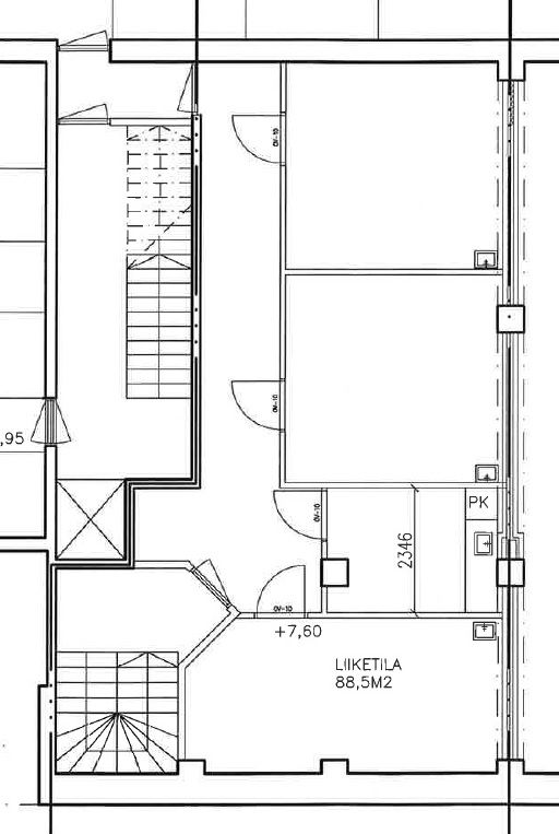
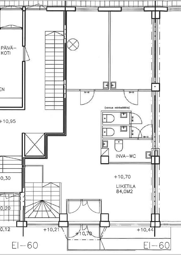
Tarjolla Töölössä kahden tason liiketila tai toimisto: tila koostuu sekä katutason tilasta 84 m2 sekä kellarikerroksen tiloista 88,5 m2. Kahvilaa tai ravintolaa tähän ei voi perustaa.
Tilassa ennen talon remonttia toimi hieronta-alan yritys jolla olisi tiloissa yhteensä viisi (5) vesipisteellistä hoitohuonetta. Kiinteistön remontin aikana tila toimi työmaatoimistona.
Pohjakuviin päivitys: taloyhtiön remontin yhteydessä kellarista avattiin kaikki tilat auki joten sen muutoksiin ja suunnitelmiin voi tuleva käyttäjä paljolti vaikuttaa. Kadulta tilaan ramppi ja katutasossa on sekä inva-WC että kaksi tavallista vessaa.
Kysy lisää ja tule katsomaan. Tähän tilaan onnistuu niin liiketoiminta kuin toimistotyökin.
Croisette on uusi ja innovatiivinen toimitilojen välitysyritys Suomessa. Meillä on vahva halu auttaa teitä löytämään paras toimitilaratkaisu mahdollisimman vaivattomasti.
Huomaathan, että kaikki vapaat ja vapautuvat tilat ovat kauttamme saatavilla. Osa tiloista on hiljaisessa markkinoinnissa, mutta ottamalla meihin yhteyttä saat nekin tietoosi.
Palvelumme on tilanhakijoille täysin maksutonta.
Croisette Real Estate Partner
Erottajankatu 5 A 6, 00130 Helsinki
Näytä puhelinnumero
+358 400 585 857
Croisette Vuokraus
Näytä puhelinnumero
+358400585857
