Vuokrataan toimistotilat - Tampere
Hermiankatu 3A, Hervanta, 33720 Tampere #10769436
Toimistotilaa erinomaisella sijainnilla Tampereen Hervannassa
Osoite
Hermiankatu 3A, 33720 Tampere
Tilatyyppi
Toimistotilaa
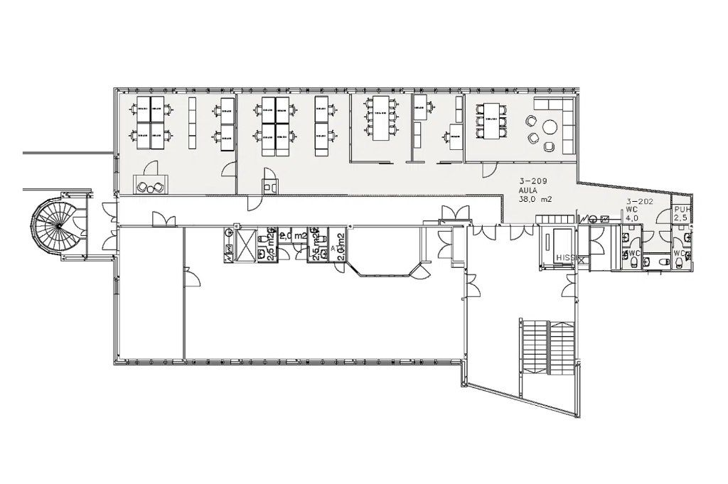
222 m2
Muuta
Vuokrataan Hermia 10 3. kerroksen valoisa toimitila sisältäen yhden neuvottelutilan.
Kiinteistö Hermia sijaitsee vilkkaassa Hervannan kaupunginosassa VTT:n ja Tampereen yliopiston vieressä, alle yhdeksän kilometriä Tampereen keskustasta. Kiinteistössä toimii lukuisia yrityksiä esimerkiksi teknologia-alan yrityksiä, jotka hyötyvät teknillisen korkeakoulun läheisyydestä ja konsulttiyrityksiä sekä puhelinpalvelukeskuksia.
Hermiaan on erinomaiset julkiset liikenneyhteydet ja Ratikka pysähtyy kiinteistön eteen. Hermiaan on helppo saapua myös autolla joka suunnasta kehätien ja moottoritien ansiosta, ja Tampereen keskustasta ajaa Hermiaan vain noin 15 minuuttia. Autoilijoille löytyy kiinteistöltä kohtuuhintaisia pysäköintipaikkoja.
Vuokralaisella on saatavilla useita erilaisia kokoustiloja ja kaksi Linkosuon ravintolaa. Lisäksi käytettävissä on myös ruokakauppa, kuntosali, Liikku-liikuntakeskus ja muita palveluita.
Tervetuloa tutustumaan, varaathan välittäjältä oman esittelyaikasi. Voit kysyä meiltä myös muita sopivia vaihtoehtoja, kauttamme löydät juuri teidän tarpeisiinne sopivat tilat. Palvelumme on tilanhakijalle veloitukseton!
Kiinteistö Hermia sijaitsee vilkkaassa Hervannan kaupunginosassa VTT:n ja Tampereen yliopiston vieressä, alle yhdeksän kilometriä Tampereen keskustasta. Kiinteistössä toimii lukuisia yrityksiä esimerkiksi teknologia-alan yrityksiä, jotka hyötyvät teknillisen korkeakoulun läheisyydestä ja konsulttiyrityksiä sekä puhelinpalvelukeskuksia.
Hermiaan on erinomaiset julkiset liikenneyhteydet ja Ratikka pysähtyy kiinteistön eteen. Hermiaan on helppo saapua myös autolla joka suunnasta kehätien ja moottoritien ansiosta, ja Tampereen keskustasta ajaa Hermiaan vain noin 15 minuuttia. Autoilijoille löytyy kiinteistöltä kohtuuhintaisia pysäköintipaikkoja.
Vuokralaisella on saatavilla useita erilaisia kokoustiloja ja kaksi Linkosuon ravintolaa. Lisäksi käytettävissä on myös ruokakauppa, kuntosali, Liikku-liikuntakeskus ja muita palveluita.
Tervetuloa tutustumaan, varaathan välittäjältä oman esittelyaikasi. Voit kysyä meiltä myös muita sopivia vaihtoehtoja, kauttamme löydät juuri teidän tarpeisiinne sopivat tilat. Palvelumme on tilanhakijalle veloitukseton!
Vapautuu
Kysy
Kerros
3
Ota yhteyttä
Tuloskiinteistöt Oy
Finlaysoninkatu 4, 33210 Tampere
Näytä puhelinnumero
050 502 4639
Sanna Eerilä-Vänni
Director, Partner
Näytä puhelinnumero
+358 50 5024639
Pyydä lisätietoa
