Vuokrataan toimistotilat, tuotantotilat, muut tilat - Espoo
Linnoitustie 9, Leppävaara, 02600 Espoo #10769251
Viihtyisää toimitilaa Leppävaarasta
Osoite
Linnoitustie 9, 02600 Espoo
Tilatyyppi
Toimistotilaa
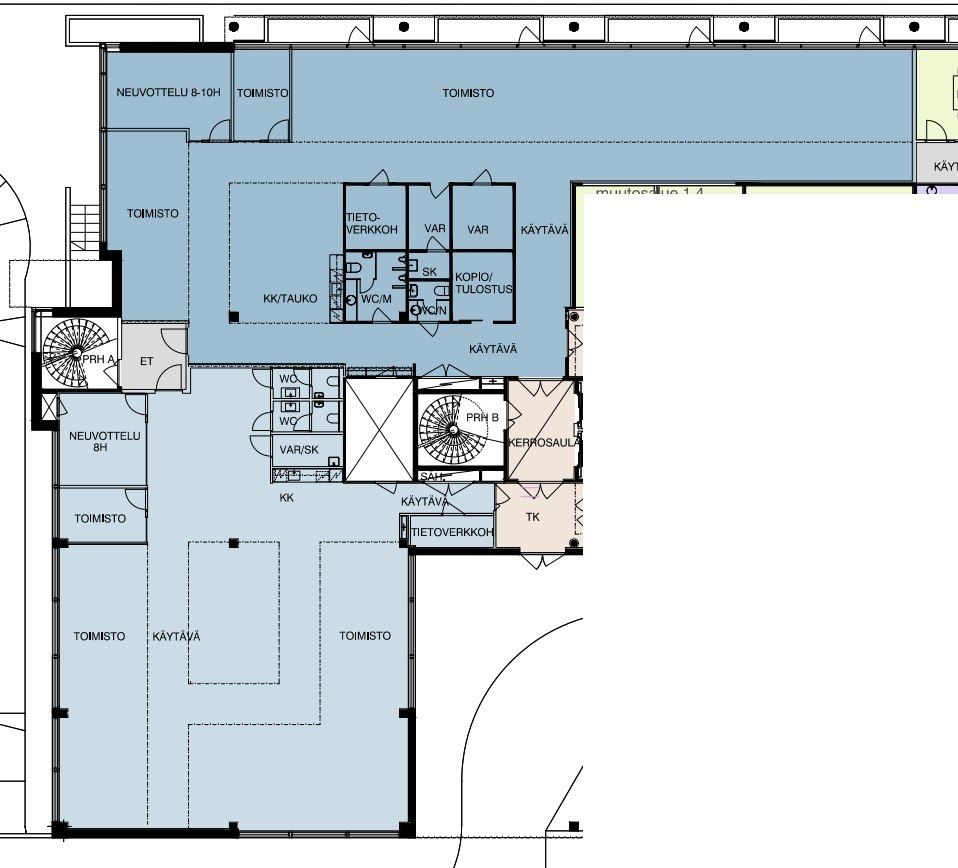
674 m2
Tuotantotilaa
674 m2
Muuta tilaa
674 m2
Yhteensä
674 m2
Pysäköinti
Hallissa
Muuta
Vuokrataan 674 m2 toimistotila omalla sisäänkäynnillä. Valoisa suurilla ikkunoilla varustettu tila soveltuu 1-kerroksen sijaintinsa vuoksi moneen tarkoitukseen, esim. asiakaspalvelutilaksi, showroomiksi tai lääkäriasemaksi. Toimitilan pohja ja viimeistely toteutetaan tulevan vuokralaisen toiveiden mukaiseksi. Tilaan on lastauslaituriyhteys.
Quartetto Business Park Fuuga tarjoaa kattavat palvelut vaativankin yrityksen makuun. Talossa toimii muun muassa hyvä lounasravintola, kahvio sekä aulapalvelu. Kuudennesta kerroksesta saat vuokrattua saunatilat edustustilaisuuksiin. Fuugan neuvottelukeskus sekä lounge päivitetään talvella 23-24 tyylikkääksi keitaaksi.
Kiinteistöllä on BREEAM Very Good- tason sertifikaatti. Katolla on aurinkopaneelit, jotka tuottavat sähköä kiinteistön käyttöön, ja loput kiinteistöenergiasta tuotetaan 100% suomalaisella tuulivoimalla.
Kiinteistö sijaitsee Kehä I:n välittömässä läheisyydessä. Raide-Jokerin pysäkki on kiinteistön vieressä ja Leppävaaran juna-asemalle on muutaman minuutin kävelymatka, samoin kauppakeskus Sellon palveluiden äärelle. Quartetto Fuuga on erinomainen paikka yrityksille, jotka arvostavat helppoa saapumista autolla ja tarvitsevat hyvät pysäköintimahdollisuudet. Pihalta ja omasta hallista löydät runsaasti kohtuuhintaisia parkkipaikkoja.
Tervetuloa tutustumaan, varaathan välittäjältä oman esittelyaikasi. Kysy meiltä muitakin juuri teille sopivia vaihtoehtoja - meidän kautta saat täysin teidän tarpeisiin räätälöidyt tilat. Palvelumme on tilanhakijalle veloitukseton!
Quartetto Business Park Fuuga tarjoaa kattavat palvelut vaativankin yrityksen makuun. Talossa toimii muun muassa hyvä lounasravintola, kahvio sekä aulapalvelu. Kuudennesta kerroksesta saat vuokrattua saunatilat edustustilaisuuksiin. Fuugan neuvottelukeskus sekä lounge päivitetään talvella 23-24 tyylikkääksi keitaaksi.
Kiinteistöllä on BREEAM Very Good- tason sertifikaatti. Katolla on aurinkopaneelit, jotka tuottavat sähköä kiinteistön käyttöön, ja loput kiinteistöenergiasta tuotetaan 100% suomalaisella tuulivoimalla.
Kiinteistö sijaitsee Kehä I:n välittömässä läheisyydessä. Raide-Jokerin pysäkki on kiinteistön vieressä ja Leppävaaran juna-asemalle on muutaman minuutin kävelymatka, samoin kauppakeskus Sellon palveluiden äärelle. Quartetto Fuuga on erinomainen paikka yrityksille, jotka arvostavat helppoa saapumista autolla ja tarvitsevat hyvät pysäköintimahdollisuudet. Pihalta ja omasta hallista löydät runsaasti kohtuuhintaisia parkkipaikkoja.
Tervetuloa tutustumaan, varaathan välittäjältä oman esittelyaikasi. Kysy meiltä muitakin juuri teille sopivia vaihtoehtoja - meidän kautta saat täysin teidän tarpeisiin räätälöidyt tilat. Palvelumme on tilanhakijalle veloitukseton!
Vapautuu
Kysy
Rakennusvuosi
2003
Kerros
1
Ota yhteyttä
Tuloskiinteistöt Oy
Rikhardinkatu 2 B 5, 00130 Helsinki
Näytä puhelinnumero
(09) 6841 620
Nina Meyke
Commercial Real Estate Advisor
Näytä puhelinnumero
+358 50 466 1519
Jorma Ryynänen
Commercial Real Estate Advisor LKV, LVV
Näytä puhelinnumero
+358 40 708 4064
Pyydä lisätietoa
