Vuokrataan liiketilat - Salo
Valtatie 5, Halikko, 24240 Salo #10769207
Liiketilaa Salon Retail Parkissa.
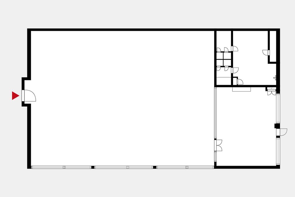
Vuokrattavana on 1203m2 kokoinen liiketila katutasosta. Tilan yhteydessä on oma lastauslaituri.
Retail Park on rakentamiseen ja sisustukseen erikoistunut kauppakeskittymä. Kiinteistö on moderni ja edustava ja se sijaitsee Salon ja Halikon rajalla, lähellä Salon keskustaa. Kiinteistössä toimivat muun muassa Tokmanni ja Jysk. Kiinteistön pihalla runsaasti pysäköintitilaa.
Kysy lisää numerosta 044 723 4700 tai info@bref.fi. Palvelumme on tilanhakijoille ilmainen.
Osoite
Valtatie 5, 24240 Salo
Tilatyyppi
Liiketilaa
1203 m2
Palvelut
Kiinteistössä monipuoliset palvelut. Lähellä mm. Prisma ja ABC huoltoasema.
Vapautuu
Kysy
Kerros
1
Energiatehokkuusluokka
Ei lain edellyttämää energiatodistusta
Ota yhteyttä
Bureau Real Estate Finland Oy
Lars Sonckin kaari 16, 02600 Espoo
Näytä puhelinnumero
0447234700
Bureau Real Estate Finland Oy
https://www.bref.fiPyydä lisätietoa
