Vuokrataan toimistotilat - Helsinki
Kalasataman TROOLI, Työpajankatu 9, Kalasatama, 00580 Helsinki #10769058
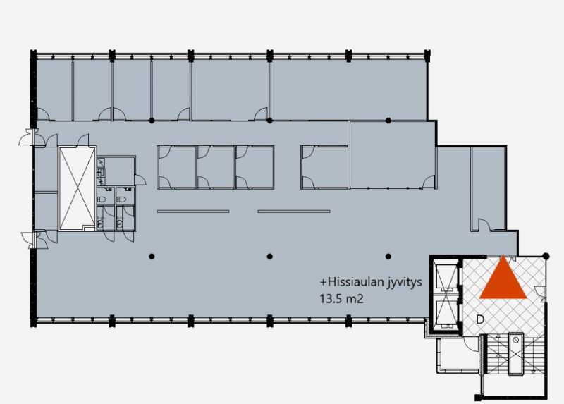
Vuokrataan kaikki nykyajan vaatimukset täyttävää muuntojoustavaa toimistotilaa kehittyvällä Kalasataman alueella. Tämä 522m2 monitilatoimisto sijaitsee talon 5krs:ssa ja se räätälöidään tulevalle käyttäjälle sopivaksi. Sisääntuloaulassa on vastaanottopalvelu ja neuvottelukeskus, talossa on lisäksi erittäin hyvät oheispalvelut, sekä autohalli.
Ota yhteyttä ja sovi esittely, palvelumme on tilanhakijoille ilmainen, Puh: 09 77 45 100.
Osoite
Työpajankatu 9, 00580 Helsinki
Tilatyyppi
Toimistotilaa
522 m2
Tilajako
Jaettavissa kahdelle 590m² / 520m² tai kolmelle käyttäjälle 248,5m²/ 420m²/ 428m².
Kiinteistö
Moderni toimistokiinteistö, joka sijaitsee mainiolla paikalla Kalasatamassa.
Sijainti
Kalasatama/Sörnäinen
Pysäköinti
Kiinteistössä on parkkihalli sekä sisäpihan autopaikkoja.
Palvelut
- aulapalvelu
- neuvottelukeskus
- lounasravintola
- catering
- viihtymisalue
- kuntosali
- autohalli
- pyöräparkki
- suihkutilat
- neuvottelukeskus
- lounasravintola
- catering
- viihtymisalue
- kuntosali
- autohalli
- pyöräparkki
- suihkutilat
Kulkuyhteydet
Kalasataman metroasema sekä linja-autopysäkki ovat lähellä.
Vapautuu
Heti
Saneerausvuosi
2022
Kerros
5 / 6
Energiatehokkuusluokka
Ei lain edellyttämää energiatodistusta
Näkyvällä paikalla
Hissi
Ota yhteyttä
Senaatin Notariaatti Oy LKV
Lämmittäjänkatu 4 A
FIN-00880 Helsinki
Tel:
Näytä puhelinnumero
+358 9 7745 100
Pyydä lisätietoa
