Vuokrataan toimistotilat - Helsinki
Firdonkatu 2, Pasila, 00520 Helsinki #10768700
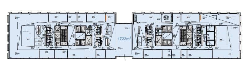
Upeaa toimistotilaa Triplan Workery Westistä
Laatua arvostavalle toimijalle modernia toimistotilaa huippu näkymin. Tähän muuntojoustavaan tilakokonaisuuteen istutat kaikki yrityksesi toiminnot sulavasti. Avoimien tilojen ja huoneiden lisäksi kokonaisuudesta löytyy useita erikokoisia neuvottelu- ja hiljaisen työn tiloja, teams-huoneita, puheluhuoneita sekä editointi-/podcasttilat. Virkistäytymiseen myös riittävästi kahvihuoneita, lounge- ja ruokailutiloja. TILAN VOI VUOKRATA MYÖS KALUSTETTUNA
Lisätiedot ja kohdenäytöt: p. 040 7070 321 / HeikkiKerros: 16
Raitiovaunu: pysäkit kauppakeskuksen edustalla
Bussi: pysäkit kauppakeskuksen edustaalla
Taxi: asema-aukiolla
CRE PREMISES
Puh. Näytä puhelinnumero 020 7290 710
Vantaankoskentie 14
01670 VANTAA
