Vuokrataan toimistotilat - Helsinki
HTC Nina, Tammasaarenkatu 1, Ruoholahti, 00180 Helsinki #10768655
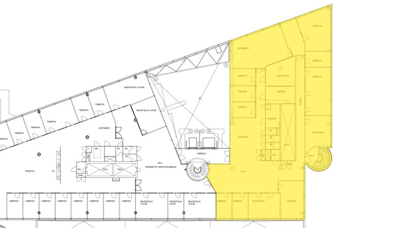
Muuntelukelpoinen ja modernin valoisa 490 m² toimisto HTC Ninan 5. kerroksesta.
Osoite
Tammasaarenkatu 1, 00180 Helsinki
Tilatyyppi
Toimistotilaa
490 m2
Pohjapiirros
Kiinteistö
Viidennen kerroksen ihastuttavan valoisa toimisto, jossa on viljalti muuntelumahdollisuuksia. Kaksi suurta avokonttoritilaa ja useita pienempiä toimistohuoneita ja neuvottelutiloja. Urbaanit maisemat Kaapelitehtaan suuntaan täydentyvät avaralla näkymällä Lauttasaareen ja merelle.
HTC Helsinki koostuu viidestä erillisestä rakennuksesta, jotka on nimetty löytöretkeilijöiden veneiden mukaan: Kolumbuksen Nina, Pinta ja Santa Maria sekä Nordenskiöldin Vega ja Heyerdahlin Kon-Tiki. Rakennukset ovat valmistuneet vuosina 2001–2002.
HTC Ninasta löytyy toinen Antellin henkilöstöravintoloista. Ravintola Acqua tarjoilee herkulliset lounaat upealla merinäköalalla maustettuna.
HTC Ninan ylimmässä kerroksessa on sauna- ja kokoustila Pohjankiisla.
HTC Helsinki koostuu viidestä erillisestä rakennuksesta, jotka on nimetty löytöretkeilijöiden veneiden mukaan: Kolumbuksen Nina, Pinta ja Santa Maria sekä Nordenskiöldin Vega ja Heyerdahlin Kon-Tiki. Rakennukset ovat valmistuneet vuosina 2001–2002.
HTC Ninasta löytyy toinen Antellin henkilöstöravintoloista. Ravintola Acqua tarjoilee herkulliset lounaat upealla merinäköalalla maustettuna.
HTC Ninan ylimmässä kerroksessa on sauna- ja kokoustila Pohjankiisla.
Pysäköinti
Kiinteistön pysäköintihallista on vuokrattavissa pysäköintitilaa
Kulkuyhteydet
Metroasema 600 m, Raitiovaunupysäkki 200 m, Bussipysäkki 300 m, Juna-asema 3,2 km, Lentoasema 29,9 km
Vapautuu
Heti
Kerros
5
Energiatehokkuusluokka
Ei lain edellyttämää energiatodistusta
Näkyvällä paikalla
Hissi
Ota yhteyttä
ScanReal Oy LKV
Opus Business Park
Hitsaajankatu 24
00810 Helsinki
info@scanreal.fi
Puh:
Näytä puhelinnumero
020 730 8830
Sopivat toimitilat yhdellä otolla!
Kartoitamme toimitilatarpeesi ja etsimme yrityksellesi parhaiten sopivat vapaat toimitilat. Koska vuokranantajat maksavat palvelumme, on tämä yrityksellesi veloituksetonta.
OTA YHTEYTTÄ - SOVI NÄYTTÖ!
Kaikki kohteemme eivät ole netissä, kerro tilatarpeesi niin kartoitamme vaihtoehdot.
Palvelumme on tilanhakijalle ilmainen
Pyydä lisätietoa
