Vuokrataan toimistotilat - Helsinki
HTC Nina, Tammasaarenkatu 1, Ruoholahti, 00180 Helsinki #10768649
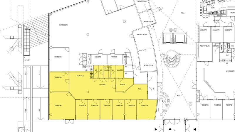
Käytännöllinen ja tyylikäs 236 m² toimisto HTC Ninan ensimmäisestä kerroksesta.
Osoite
Tammasaarenkatu 1, 00180 Helsinki
Tilatyyppi
Toimistotilaa
236 m2
Pohjapiirros
Kiinteistö
Käytännöllisesti rakennuksen aulan yhteydessä sijaitseva monikäyttöinen toimisto, josta voidaan tarvittaessa järjestää kulku myös merenpuolen pihalle. Erilliset toimistohuoneet on mahdollisuus tarvittaessa yhdistää suuremmiksi tai avata avotilaksi. Keittiön yhteydessä tilaa järjestää ruokailu- tai oleskeluryhmä. Kolme WC:tä.
HTC Helsinki koostuu viidestä erillisestä rakennuksesta, jotka on nimetty löytöretkeilijöiden veneiden mukaan: Kolumbuksen Nina, Pinta ja Santa Maria sekä Nordenskiöldin Vega ja Heyerdahlin Kon-Tiki. Rakennukset ovat valmistuneet vuosina 2001–2002.
HTC Ninasta löytyy toinen Antellin henkilöstöravintoloista. Ravintola Acqua tarjoilee herkulliset lounaat upealla merinäköalalla maustettuna.
HTC Ninan ylimmässä kerroksessa on sauna- ja kokoustila Pohjankiisla.
HTC Helsinki koostuu viidestä erillisestä rakennuksesta, jotka on nimetty löytöretkeilijöiden veneiden mukaan: Kolumbuksen Nina, Pinta ja Santa Maria sekä Nordenskiöldin Vega ja Heyerdahlin Kon-Tiki. Rakennukset ovat valmistuneet vuosina 2001–2002.
HTC Ninasta löytyy toinen Antellin henkilöstöravintoloista. Ravintola Acqua tarjoilee herkulliset lounaat upealla merinäköalalla maustettuna.
HTC Ninan ylimmässä kerroksessa on sauna- ja kokoustila Pohjankiisla.
Pysäköinti
Kiinteistön pysäköintihallista on vuokrattavissa pysäköintitilaa
Kulkuyhteydet
Metroasema 600 m, Raitiovaunupysäkki 200 m, Bussipysäkki 300 m, Juna-asema 3,2 km, Lentoasema 29,9 km
Vapautuu
Heti
Kerros
1
Energiatehokkuusluokka
Ei lain edellyttämää energiatodistusta
Katutasossa
Näkyvällä paikalla
Hissi
Ota yhteyttä
ScanReal Oy LKV
Opus Business Park
Hitsaajankatu 24
00810 Helsinki
info@scanreal.fi
Puh:
Näytä puhelinnumero
020 730 8830
Sopivat toimitilat yhdellä otolla!
Kartoitamme toimitilatarpeesi ja etsimme yrityksellesi parhaiten sopivat vapaat toimitilat. Koska vuokranantajat maksavat palvelumme, on tämä yrityksellesi veloituksetonta.
OTA YHTEYTTÄ - SOVI NÄYTTÖ!
Kaikki kohteemme eivät ole netissä, kerro tilatarpeesi niin kartoitamme vaihtoehdot.
Palvelumme on tilanhakijalle ilmainen
Pyydä lisätietoa
