Vuokrataan toimistotilat - Espoo
Perkkaantie 1, Leppävaara, 02600 Espoo #10768508
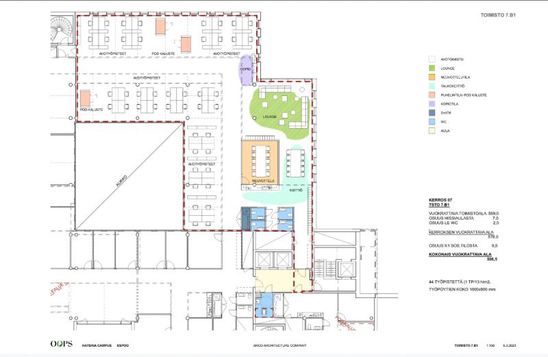
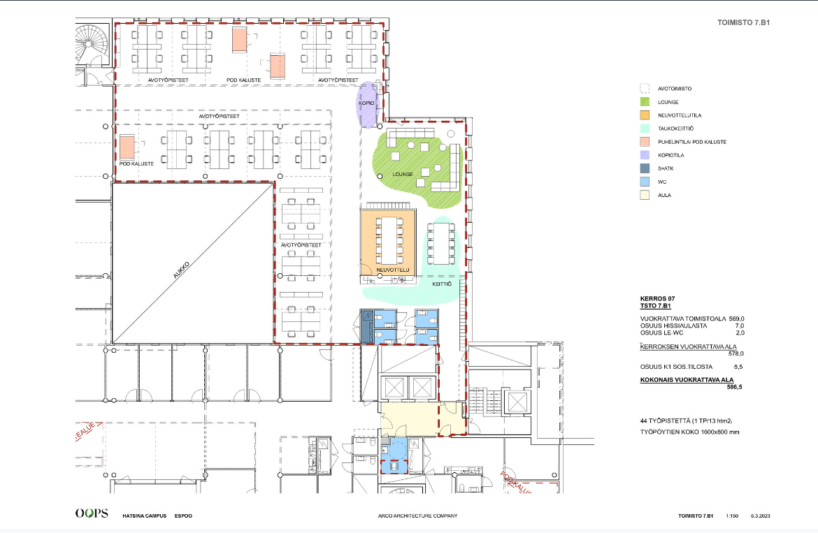
Vuokrattavana 7. kerroksen toimistotila, joka räätälöidään käyttäjän tarpeita vastaavaksi avotilaksi, huonekonttoriksi tai niiden yhdistelmäksi. Tällä hetkellä tila on avoa yhdellä neuvotteluhuoneella ja tilassa on useampi WC ja oma keittiö. Hissi kätevästi tilan sisäänkäynnin läheisyydessä. Ota yhteyttä ja sovi esittely, vuokrauspalvelumme on tilanhakijoille maksuton.
Osoite
Perkkaantie 1, 02600 Espoo
Tilatyyppi
Toimistotilaa
587 m2
Pohjapiirros
Kiinteistö
OOPS = Oasis of Professionnals rakennuksella on BREEAM In-Use ympäristösertifikaatti arvosanalla Excellent.
Sijainti
Vuonna 2021 loppuvuodesta valmistuneet talot sijaitsevat Leppävaaran Hatsinanpuistossa Monikonpuron ja toimivien liikenneyhteyksien äärellä Kehä I:n, pääjunaradan ja tulevan Raide-Jokerin risteyksessä.
Pysäköinti
Oma pysäköintihalli.
Palvelut
Modernissa täyden palvelun kiinteistössä on mm. oma ravintola ja aulapalvelu.
Vapautuu
Heti
Kerros
7 / 11
Ympäristöluokitus
BREEM In-Use
Näkyvällä paikalla
Ota yhteyttä
Senaatin Notariaatti Oy LKV
Lämmittäjänkatu 4 A
FIN-00880 Helsinki
Tel:
Näytä puhelinnumero
+358 9 7745 100
Pyydä lisätietoa
