Vuokrataan toimistotilat - Helsinki
Lemuntie 7, Vallila, 00510 Helsinki #10768373
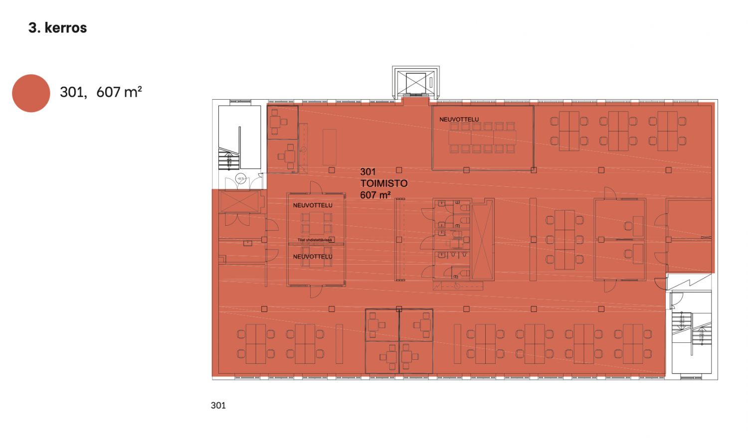
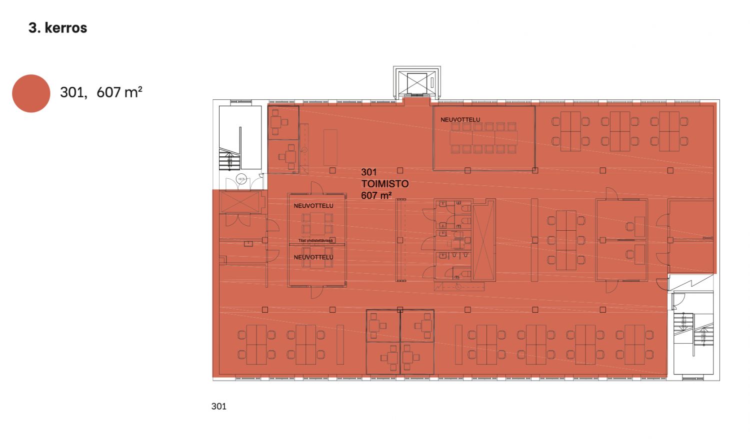
Vuokrataan koko kerroksen kattava toimistohuoneisto. Näkymät sekä kadun puolelle että rauhalliselle sisäpihalle. Taukotilassa keittiöpiste.
Neuvottelutiloja vuokrattavissa kiinteistön 1.kerroksessa.
Vapaana myös varastotilaa kellarikerroksessa.
Kohde on peruskorjattu vuonna 2002 ja kiinteistö sijaitsee hyvien kulkuyhteyksien varrella Mäkelänkadun bussi- ja raitiovaunulinjojen läheisyydessä.
LISÄTIETOJA numerosta 020 7290 710. Lisää kohteita osoitteessa www.premises.fi.
Kohteella ei ole lain edellyttämää energiatodistusta.Kerros: 3
Osoite
Lemuntie 7, 00510 Helsinki
Tilatyyppi
Toimistotilaa
607 m2
Ota yhteyttä
CRE PREMISES
Puh. Näytä puhelinnumero 020 7290 710
Vantaankoskentie 14
01670 VANTAA
Pyydä lisätietoa
