Vuokrataan toimistotilat - Helsinki
Osmontie 34, Käpylä, 00610 Helsinki #10768303
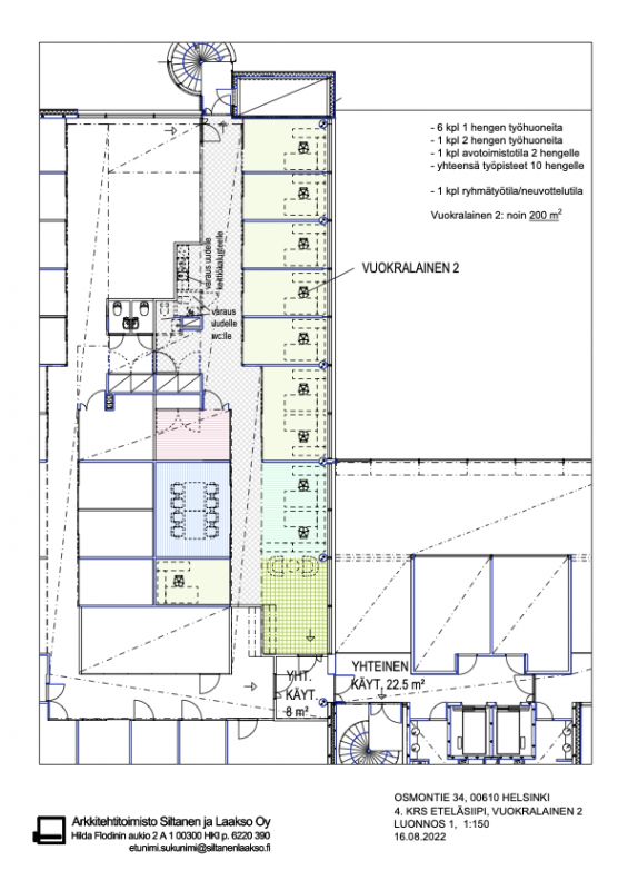
Tyylikäs ja tilava, n. 200 m² toimistotila hyvien kulkuyhteyksien varrella, aivan Käpylän juna-aseman läheltä.
Osoite
Osmontie 34, 00610 Helsinki
Tilatyyppi
Toimistotilaa
200 m2
Pohjapiirros
Kiinteistö
Tilat voidaan toteuttaa sekä avotoimistona että omina huoneina, hybridityön edellyttämiä vetäytymistiloja on runsaasti.
Osmontie 34 sijaitsee erinomaisella paikalla aivan Käpylän aseman vieressä. Julkiset liikenneyhteydet ovat erinomaiset ja autolla pääsee ripeästi perille läheiseltä Tuusulanväylältä. Asiakasyrityksesi saa myös erinomaisen näkyvyyden valomainoksilla, jotka näkyvät niin Tuusulanväylälle kuin pääradallekin. Osmontie 34 on rakennettu vuonna 2007, joten talotekniikka on edelleen hyvässä kunnossa. Tarjottavat tilat ovat suhteellisen hyvässä kunnossa, joten sisään pääsee muuttamaan nopeallakin aikataululla. Kiinteistössä on suosittu lounasravintola sekä käytön mukaan varattavia neuvottelutiloja
Osmontie 34 sijaitsee erinomaisella paikalla aivan Käpylän aseman vieressä. Julkiset liikenneyhteydet ovat erinomaiset ja autolla pääsee ripeästi perille läheiseltä Tuusulanväylältä. Asiakasyrityksesi saa myös erinomaisen näkyvyyden valomainoksilla, jotka näkyvät niin Tuusulanväylälle kuin pääradallekin. Osmontie 34 on rakennettu vuonna 2007, joten talotekniikka on edelleen hyvässä kunnossa. Tarjottavat tilat ovat suhteellisen hyvässä kunnossa, joten sisään pääsee muuttamaan nopeallakin aikataululla. Kiinteistössä on suosittu lounasravintola sekä käytön mukaan varattavia neuvottelutiloja
Vapautuu
Heti
Kerros
4 / 5
Energiatehokkuusluokka
Ei lain edellyttämää energiatodistusta
Näkyvällä paikalla
Ota yhteyttä
ScanReal Oy LKV
Opus Business Park
Hitsaajankatu 24
00810 Helsinki
info@scanreal.fi
Puh:
Näytä puhelinnumero
020 730 8830
Sopivat toimitilat yhdellä otolla!
Kartoitamme toimitilatarpeesi ja etsimme yrityksellesi parhaiten sopivat vapaat toimitilat. Koska vuokranantajat maksavat palvelumme, on tämä yrityksellesi veloituksetonta.
OTA YHTEYTTÄ - SOVI NÄYTTÖ!
Kaikki kohteemme eivät ole netissä, kerro tilatarpeesi niin kartoitamme vaihtoehdot.
Palvelumme on tilanhakijalle ilmainen
Pyydä lisätietoa
