Vuokrataan toimistotilat - Helsinki
Kluuvikatu 5/Aleksanterinkatu 9, Kluuvi, 00100 Helsinki #10768275
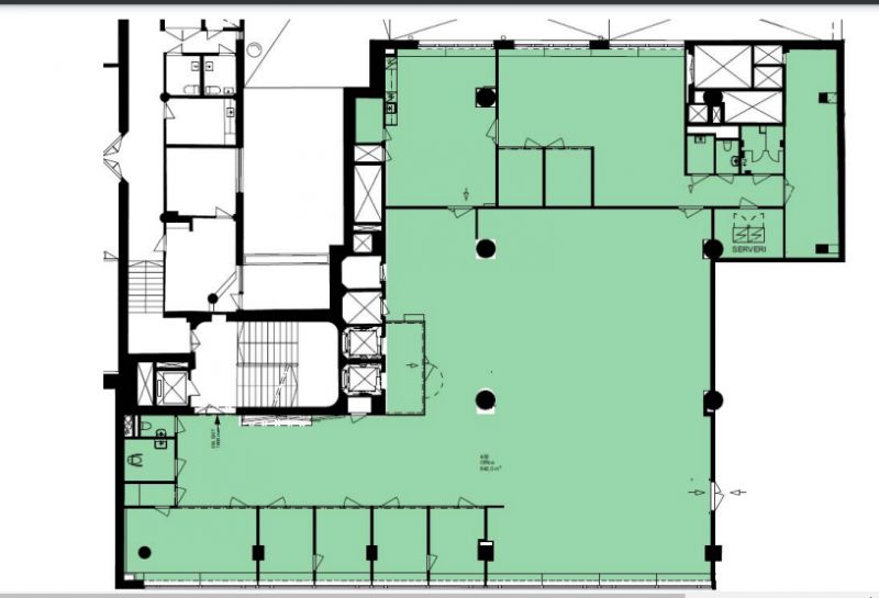
Vuokrattavana 4. kerroksen viihtyisää, valoisaa, modernia toimistotilaa erinomaisella sijainnilla Helsingin ytimessä.
Osoite
Kluuvikatu 5/Aleksanterinkatu 9, 00100 Helsinki
Tilatyyppi
Toimistotilaa
642 m2
Tilajako
Jaettavissa
laajennettavissa 751 m²/1130 m²
Kiinteistö
Vuokrattavana 4. kerroksen viihtyisää, valoisaa, modernia toimistotilaa. Tilassa on avotilaa, erikokosia toimistohuoneita, neuvotteluhuone sekä omat sosiaalitilat. . Toimistolle oma sisäänkäynti suoraan kadulta 9 B –portaasta sekä
Kauppakeskus Kluuvin sisähisseillä suoraan tilaan.
Kauppakeskus Kluuvin sisähisseillä suoraan tilaan.
Sijainti
Ydinkeskusta, Helsinki
Pysäköinti
Pysäköinti mahdollista Europark Kluuvin ja Aimo Park Kluuvin pysäköintihallissa.
Palvelut
-Henkilöstöravintola
Kulkuyhteydet
-Metro
-Raitiovaunu
-Bussi
-Oma auto
-Raitiovaunu
-Bussi
-Oma auto
Vapautuu
Heti
Kerros
4
Energiatehokkuusluokka
Ei lain edellyttämää energiatodistusta
Näkyvällä paikalla
Jaettavissa
Hissi
Ota yhteyttä
REALIUM OY LKV
Tammasaarenkatu 1, 00180 Helsinki
Vaihde:
Näytä puhelinnumero
010 326 346
Tuomo Mäkelä
tuomo.makela@realium.fi
p.
Näytä puhelinnumero
044 050 1158
Joel Keto
joel.keto@realium.fi
p.
Näytä puhelinnumero
045 317 0330
KAIKKI TILAVAIHTOEHDOT KERRALLA!
SOITA - MEILAA JA TILAA NÄYTTÖ!
Ilmainen palvelu tilanhakijoille.
Kartoitamme parhaat tilavaihtoehdot.
Kaikki kohteet eivät ole netissä.
Pyydä lisätietoa
