Vuokrataan toimistotilat - Helsinki
Kluuvikatu 5/Aleksanterinkatu 9, Kluuvi, 00100 Helsinki #10768272
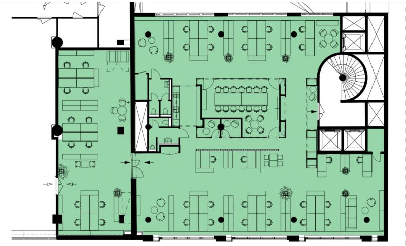
Vuokrattavana 4. kerroksen täysin remontoitua, valoisaa, modernia toimistotilaa erinomaisella sijainnilla Helsingin ytimessä.
Osoite
Kluuvikatu 5/Aleksanterinkatu 9, 00100 Helsinki
Tilatyyppi
Toimistotilaa
488 m2
Kiinteistö
Vuokrattavana 4. kerroksen täysin remontoitua, valoisaa, modernia toimistotilaa, jossa on iso neuvottelutila sekä vetäytymistiloja. Toimistossa on korkeatasoiset keittiö ja saniteettitila. Tilalle on aivan oma sisäänkäynti hienosta aulasta osoitteesta Aleksanterinkatu 9 A.
Sijainti
Ydinkeskusta, Helsinki
Pysäköinti
Pysäköinti mahdollista Europark Kluuvin ja Aimo Park Kluuvin pysäköintihallissa.
Palvelut
-Henkilöstöravintola
Kulkuyhteydet
-Metro
-Raitiovaunu
-Bussi
-Oma auto
-Raitiovaunu
-Bussi
-Oma auto
Vapautuu
Heti
Kerros
4
Energiatehokkuusluokka
Ei lain edellyttämää energiatodistusta
Näkyvällä paikalla
Hissi
Ota yhteyttä
REALIUM OY LKV
Tammasaarenkatu 1, 00180 Helsinki
Vaihde:
Näytä puhelinnumero
010 326 346
Tuomo Mäkelä
tuomo.makela@realium.fi
p.
Näytä puhelinnumero
044 050 1158
Joel Keto
joel.keto@realium.fi
p.
Näytä puhelinnumero
045 317 0330
KAIKKI TILAVAIHTOEHDOT KERRALLA!
SOITA - MEILAA JA TILAA NÄYTTÖ!
Ilmainen palvelu tilanhakijoille.
Kartoitamme parhaat tilavaihtoehdot.
Kaikki kohteet eivät ole netissä.
Pyydä lisätietoa
