Myydään toimistotilat, liiketilat - Naantali
Luostarinkatu 22, 21100 Naantali #10768217
Uusi liikehuoneisto Naantalin keskustasta
Osoite
Luostarinkatu 22, 21100 Naantali
Tilatyyppi
Toimistotilaa
137,5 m2
Liiketilaa
137,5 m2
Yhteensä
137,5 m2
Myyntihinta
378125 e
Muuta
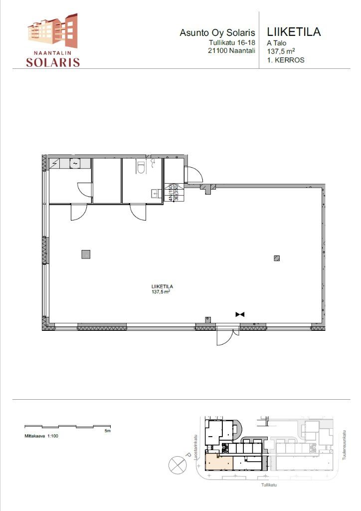
Myydään liikehuoneisto Naantalin keskustaan valmistuneen As. Oy Solariksen kivijalasta.
Huoneisto sijoittuu A-talon kulmaan, joka sijaitsee Luostarinkadun ja Tullikadun risteyksessä. Näyteikkunat katsovat molemmille kaduille, jonka ansiosta näkyvyys on erinomainen.
Avotilan lisäksi tilasta löytyy keittiö, pieni varasto sekä WC.
Kysy lisää tästä kohteesta!
Huoneisto sijoittuu A-talon kulmaan, joka sijaitsee Luostarinkadun ja Tullikadun risteyksessä. Näyteikkunat katsovat molemmille kaduille, jonka ansiosta näkyvyys on erinomainen.
Avotilan lisäksi tilasta löytyy keittiö, pieni varasto sekä WC.
Kysy lisää tästä kohteesta!
Vapautuu
Kysy
Kerros
Katutaso
Ota yhteyttä
Tuloskiinteistöt Oy
Kauppiaskatu 11 C 23, 20100 Turku
Näytä puhelinnumero
(02) 274 3500
Juho Haapasalo
Commercial Real Estate Advisor
Näytä puhelinnumero
+358 44 491 4624
Pyydä lisätietoa
