Vuokrataan - Helsinki
Porkkalankatu 22, Ruoholahti, 00180 Helsinki #10768147
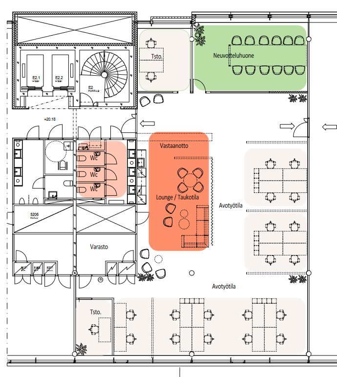
Vuokrattavana avara ja valoisa läpitalon toimisto ( 310 m2). 5.kerroksessa sijaitseva muuttovalmis toimisto koostuu avotilan lisäksi khdesta huoneesta ja neuvottelutilasta; wc-tilat hissiaulassa. Kohteesta löytyy aulapalvelu, lounasravintola, kokouskeskus. Parkkihallista pääsee suoraan toimistoihin.
Osoite
Porkkalankatu 22, 00180 Helsinki
Vapautuu
Kysy
Huoneiden lukumäärä
1
Energiatehokkuusluokka
Ei lain edellyttämää energiatodistusta
Ota yhteyttä
RHG Real Estate
Hämeenkatu 2 B20, 20500 Turku
Näytä puhelinnumero
020 734 4020
Heli Reinberg
Näytä puhelinnumero
040 647 4900
Pyydä lisätietoa
