Vuokrataan toimistotilat - Espoo
Sierakiventie 8-10, Kauklahti, 02780 Espoo #10768050
Edustava ja siisti koulutustila rakennuksen toisessa kerroksessa. Sopii myös toimistokäyttöön.
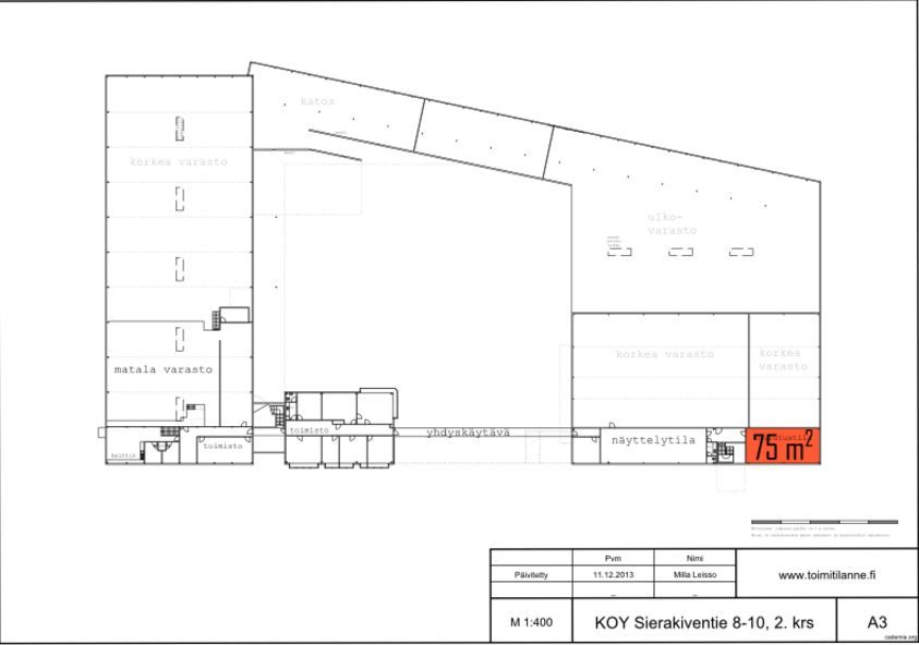
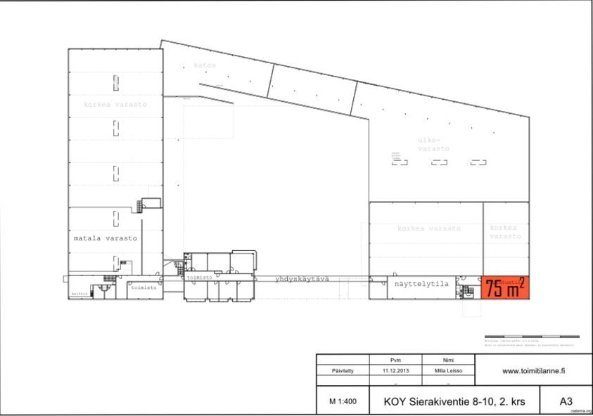
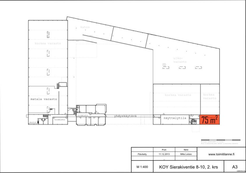
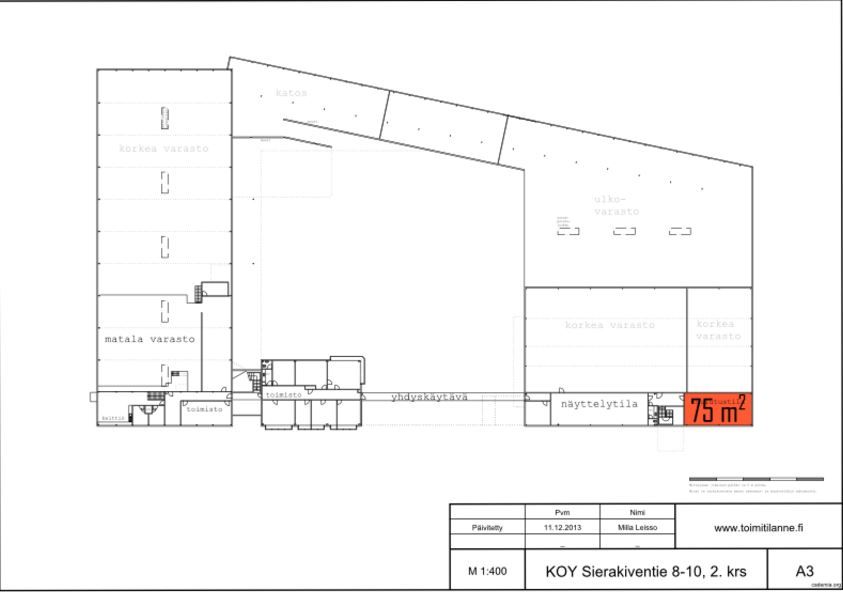
Hyväkuntoinen ja monipuolinen toimisto- ja varastokiinteistö on valmistunut 1980-luvulla Espoon Kauklahteen. Kiinteistö sijaitsee hyvien kulkuyhteyksien varrella: Kehä III, Turunväylä, Hangontie. Sen kokonaispinta-ala on 3715 m2.
Lisätiedot 020 7290 710. Lisää kohteita www.premises.fi
Kohteella ei ole lain edellyttämää energiatodistusta tai energialuokka ei tiedossa.Kerros: 2
Osoite
Sierakiventie 8-10, 02780 Espoo
Tilatyyppi
Toimistotilaa
75 m2
Ota yhteyttä
CRE PREMISES
Puh. Näytä puhelinnumero 020 7290 710
Vantaankoskentie 14
01670 VANTAA
Pyydä lisätietoa
