Vuokrataan varastotilat - Espoo
Sierakiventie 8-10, Kauklahti, 02780 Espoo #10768046
Vuokrataan hyllyvarasto, jonka korkeus on 2.5 metriä. Tila on kuivaa ja lämmintä, sopii esimerkiksi pientavaroiden varastointiin. Hyllytilaa on runsaasti käytössä, mutta tarvittaessa hyllyt voidaan myös purkaa.
Lisäksi kiinteistössä vuokrattavana ovat edustavat tilat kokousten ja koulutustilaisuuksien järjestämiseen, tilat tarvittaessa valmiiksi kalustettuina. Kiinteistössä on myös hienot sauna- ja virkistystilat. Kahta erillistä asuntoa voi käyttää esim. pitkänmatkan vieraiden majoittamiseen tai omalle väelle.
Hyväkuntoinen ja monipuolinen toimisto- ja varastokiinteistö on valmistunut 1980-luvulla Espoon Kauklahteen. Kiinteistö sijaitsee hyvien kulkuyhteyksien varrella: Kehä III, Turunväylä, Hangontie. Sen kokonaispinta-ala on 3715 m2.
Kahden rakennuksen väliin jää tilava sisäpiha, josta vuokrataan suojakatoksellista kylmää tilaa ulkovarastoksi 1595 m2.
Tällä hetkellä Sierakiventie 8-10:n vuokralaiset toimivat erityisesti tukku- ja vähittäiskaupan sekä rakentamisen toimialoilla.
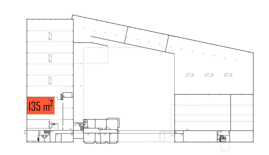
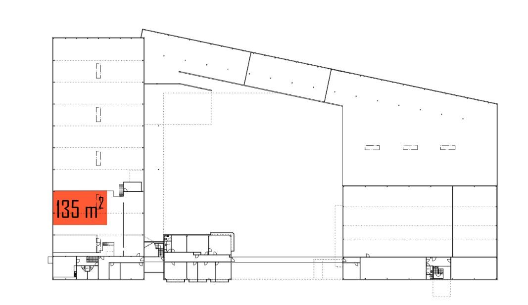
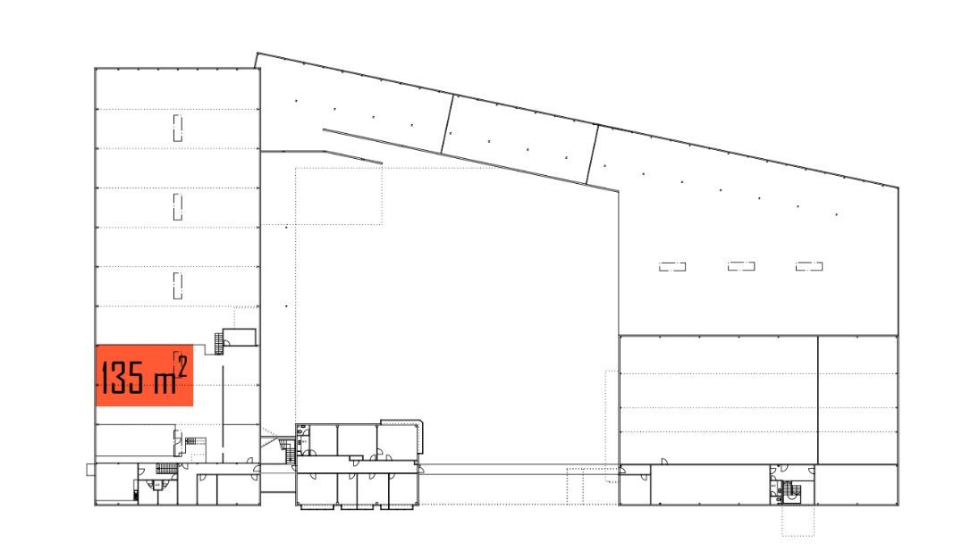
Vuokrataan hyllyvarasto, jonka korkeus on 2,5 m. Tilan koko on 428 m2, josta on vapaana 223 m2. Varastotila soveltuu esim. pientavaroiden varastointiin. Hyllytilaa on runsaasti käytössä. Varaston voi jakaa myös pienempiin tiloihin.
Kiinteistöstä mahdollista myös vuokrata 10m2 varastohuone ja 13,5m2 varastokontti. Vuokrattavana on myös kaksi pientä toimistohuonetta/ työtilaa kooltaan 15m2 ja 10m2.
Lisätiedot 020 7290 710. Lisää kohteita www.premises.fi
Kohteella ei ole lain edellyttämää energiatodistusta tai energialuokka ei tiedossa.Kerros: 2
CRE PREMISES
Puh. Näytä puhelinnumero 020 7290 710
Vantaankoskentie 14
01670 VANTAA
