Vuokrataan toimistotilat - Espoo
Quartetto Fuuga, Linnoitustie 9, Leppävaara, 02600 Espoo #10767965
Toisen kerroksen tyylikäs 1323 m² toimisto korkeatasoisessa Business Parkissa, hyvällä paikalla Leppävaarassa
Osoite
Linnoitustie 9, 02600 Espoo
Tilatyyppi
Toimistotilaa
1323 m2
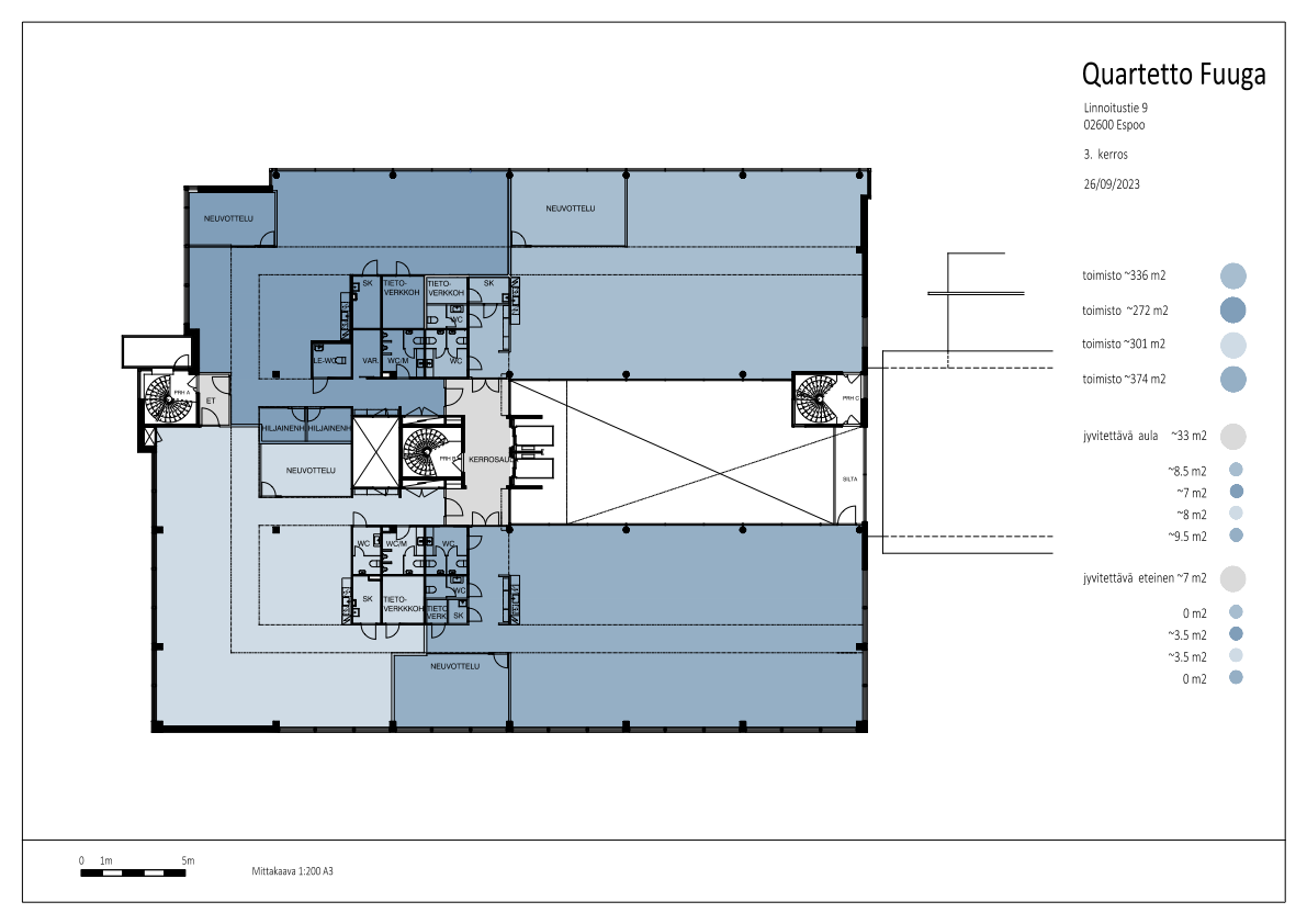
Pohjapiirros
Kiinteistö
Samanlaiset kokonaisuudet tarjolla myös kolmannesta ja viidennestä kerroksesta.
Quartetto tarjoaa nykyaikaiset toimitilat keskeiseltä paikalta kasvavasta ja kehittyvästä Leppävaarasta. Alueen palvelut ovat erinomaiset ja esimerkiksi kauppakeskus Sello liikkeineen ja ravintoloineen sijaitsee ihan vieressä. Paikalle pääsee kätevästi julkisilla yhteyksillä, kuten junilla ja busseilla. Leppävaaran juna-asema on lyhyen kävelymatkan päässä ja autolla pujahtaa hetkessä Kehä I:lle ja Turunväylälle. Raidejokerin pysäkki kiinteistön välittömässä läheisyydessä. Kiinteistössä on myös oma parkkihalli ja runsaasti pysäköintitilaa.
Fuugassa on kaikki, mitä menestykselliseen liiketoimintaan tarvitaan. Quartetto-yrityspuisto tarjoaa kattavat palvelut vaativankin yrityksen makuun. Talossa toimii muun muassa lounasravintola, kahvio sekä aulapalvelu. Kuudennessa kerroksessa on vuokrattava saunatila. Quartetto Fuuga on erinomainen paikka yrityksille, jotka arvostavat helppoa saapumista autolla ja tarvitsevat hyvät pysäköintimahdollisuudet. Ensimmäisen kerroksen neuvotteluhuonemaailma ja aulan loungealue uudistetaan talven 2023-2024 aikana.
Quartetto tarjoaa nykyaikaiset toimitilat keskeiseltä paikalta kasvavasta ja kehittyvästä Leppävaarasta. Alueen palvelut ovat erinomaiset ja esimerkiksi kauppakeskus Sello liikkeineen ja ravintoloineen sijaitsee ihan vieressä. Paikalle pääsee kätevästi julkisilla yhteyksillä, kuten junilla ja busseilla. Leppävaaran juna-asema on lyhyen kävelymatkan päässä ja autolla pujahtaa hetkessä Kehä I:lle ja Turunväylälle. Raidejokerin pysäkki kiinteistön välittömässä läheisyydessä. Kiinteistössä on myös oma parkkihalli ja runsaasti pysäköintitilaa.
Fuugassa on kaikki, mitä menestykselliseen liiketoimintaan tarvitaan. Quartetto-yrityspuisto tarjoaa kattavat palvelut vaativankin yrityksen makuun. Talossa toimii muun muassa lounasravintola, kahvio sekä aulapalvelu. Kuudennessa kerroksessa on vuokrattava saunatila. Quartetto Fuuga on erinomainen paikka yrityksille, jotka arvostavat helppoa saapumista autolla ja tarvitsevat hyvät pysäköintimahdollisuudet. Ensimmäisen kerroksen neuvotteluhuonemaailma ja aulan loungealue uudistetaan talven 2023-2024 aikana.
Pysäköinti
Pihalla ja pysäköintihallissa
Palvelut
Leppävaaran palvelut, mm. Kauppakeskus Sello
Kulkuyhteydet
Bussipysäkki - alle 100 m
Juna-asema - 400 m
Lentoasema - 19,4 km
Juna-asema - 400 m
Lentoasema - 19,4 km
Vapautuu
Heti
Kerros
2 / 6
Energiatehokkuusluokka
Ei lain edellyttämää energiatodistusta
Näkyvällä paikalla
Hissi
Ota yhteyttä
ScanReal Oy LKV
Opus Business Park
Hitsaajankatu 24
00810 Helsinki
info@scanreal.fi
Puh:
Näytä puhelinnumero
020 730 8830
Sopivat toimitilat yhdellä otolla!
Kartoitamme toimitilatarpeesi ja etsimme yrityksellesi parhaiten sopivat vapaat toimitilat. Koska vuokranantajat maksavat palvelumme, on tämä yrityksellesi veloituksetonta.
OTA YHTEYTTÄ - SOVI NÄYTTÖ!
Kaikki kohteemme eivät ole netissä, kerro tilatarpeesi niin kartoitamme vaihtoehdot.
Palvelumme on tilanhakijalle ilmainen
Pyydä lisätietoa
