Vuokrataan - Helsinki
Siltasaarenkatu 10, Hakaniemi, 00530 Helsinki #10767923
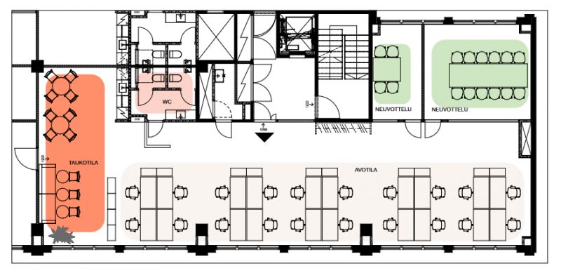
Hakaniemen torin laidalta vuokrattavana täysin remontoitu 3.kerroksen toimisto ( 228 m2). Avotilan lisäksi tilassa on 2 neuvotteluhuonetta/ vetäymistilaa, avara keittiö-lounge ja wc-tilat.
Historiallinen Elannon talo on täysin saneerattu ja vastaa täysin nykypäivän vaatimuksia. Kohteessa aulapalvelu, useita ravintoloita, päivittäistavarakauppa, oma parkkihalli ja polkupyörähalli.
Osoite
Siltasaarenkatu 10, 00530 Helsinki
Vapautuu
Kysy
Huoneiden lukumäärä
1
Energiatehokkuusluokka
Ei lain edellyttämää energiatodistusta
Ota yhteyttä
RHG Real Estate
Hämeenkatu 2 B20, 20500 Turku
Näytä puhelinnumero
020 734 4020
Heli Reinberg
Näytä puhelinnumero
040 647 4900
Pyydä lisätietoa
