Vuokrataan toimistotilat - Jyväskylä
Hoitajantie 4, Kyllönmäki, 40620 Jyväskylä #10767377
Vuokrataan toimistotilaa Sairaala Novan läheisyydestä
Osoite
Hoitajantie 4, 40620 Jyväskylä
Tilatyyppi
Toimistotilaa
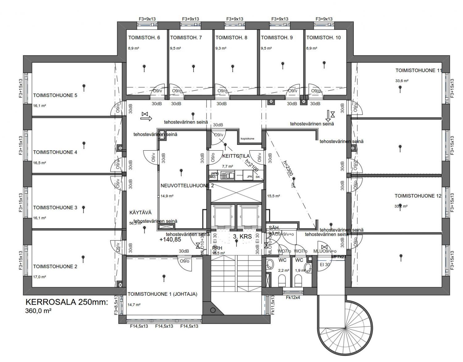
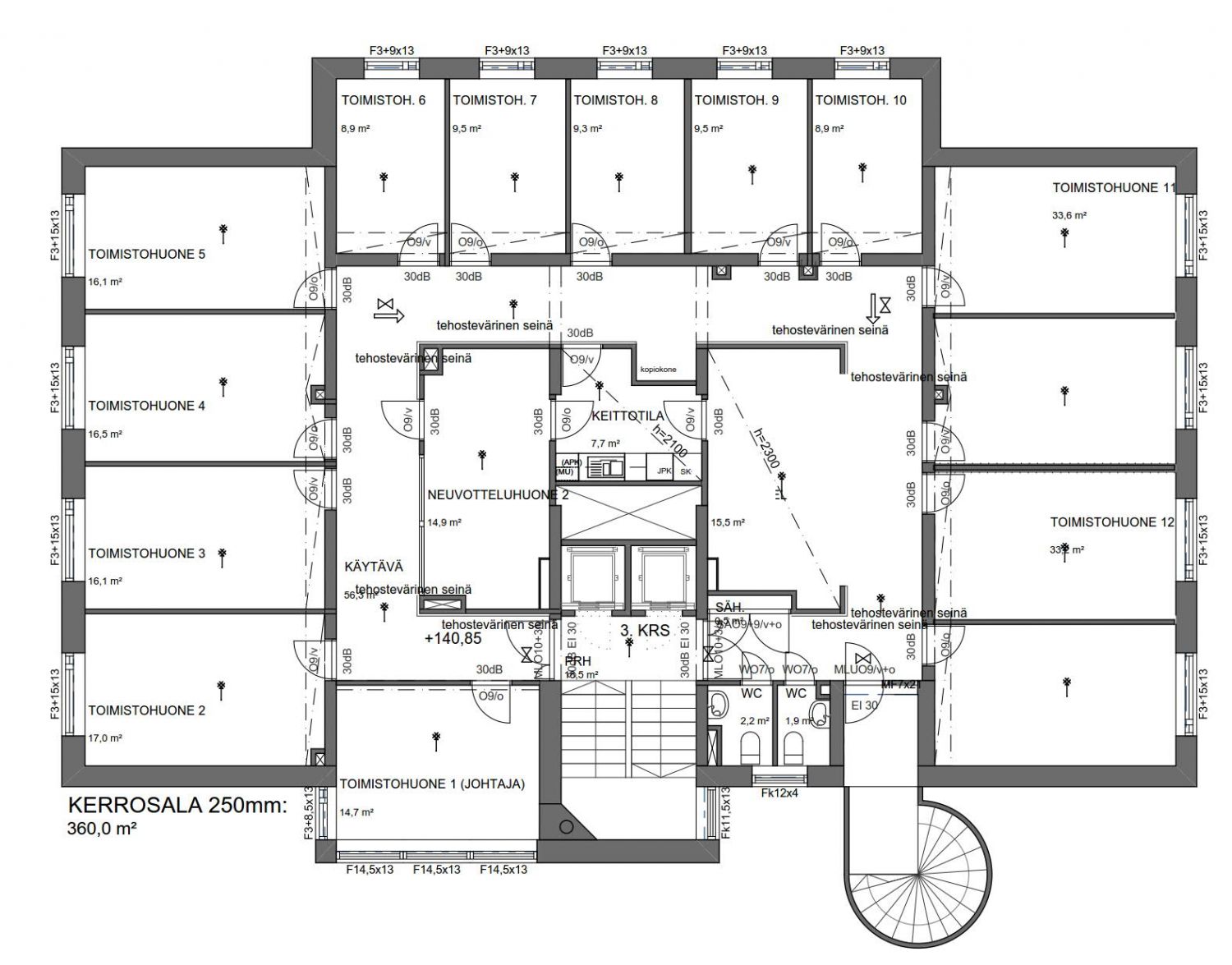
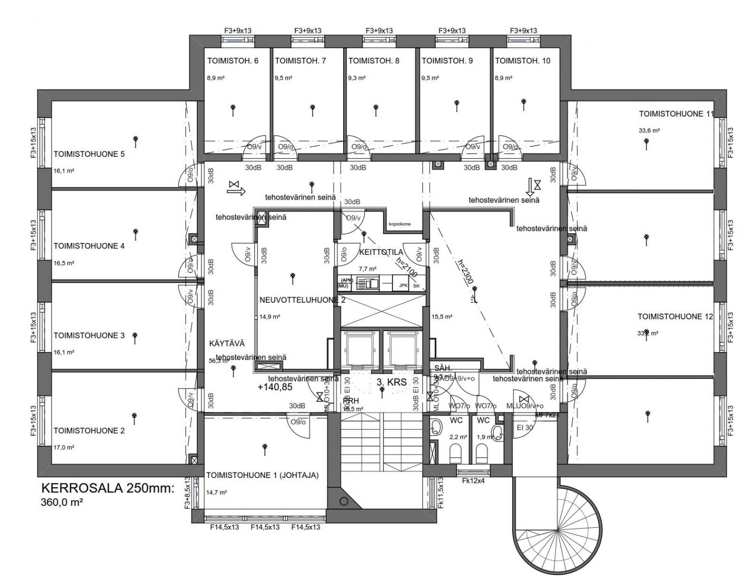
360 m2
Muuta
Vuokrataan heti vapaa erittäin siisti vuonna 2010 remontoitu ja 2021 huoltomaalattu toimistokerros Keski-Suomen Keskussairaalan alueelta Asunto Oy Jyväskylän Kruununtornista. Kohde sijaitsee uuden, vuonna 2021 valmistuneen Sairaala Novan vieressä.
Rakennuksessa on hissi, kerroksessa valokuituyhteys ja huoneet ovat äänieristetyt. Tila on ollut terveydenhuollon toimijan käytössä ja siinä on 14 huonetta + keittiö + neuvottelutila ja asiakkaiden odotusaula joka on helposti muutettavissa joko yhdeksi huoneeksi tai neuvottelutilaksi. Kiinteistö on varustettu koneellisella ilmanvaihdolla. Sairaalan alue on erinomaisesti saavutettava, julkinen liikenne on erinomainen tähän kohteeseen, alueella myös kaksi P-taloa ja lippuautomaattipysäköinti vieressä. Ota yhteyttä näyttöä varten!
Rakennuksessa on hissi, kerroksessa valokuituyhteys ja huoneet ovat äänieristetyt. Tila on ollut terveydenhuollon toimijan käytössä ja siinä on 14 huonetta + keittiö + neuvottelutila ja asiakkaiden odotusaula joka on helposti muutettavissa joko yhdeksi huoneeksi tai neuvottelutilaksi. Kiinteistö on varustettu koneellisella ilmanvaihdolla. Sairaalan alue on erinomaisesti saavutettava, julkinen liikenne on erinomainen tähän kohteeseen, alueella myös kaksi P-taloa ja lippuautomaattipysäköinti vieressä. Ota yhteyttä näyttöä varten!
Vapautuu
Kysy
Kerros
3
Ota yhteyttä
Infonia Oy
Kauppakatu 18 A, 40100 Jyväskylä
Näytä puhelinnumero
+358 407579731
Mikko Hirvi
Näytä puhelinnumero
+358 407579731
Pyydä lisätietoa
