Myydään/sijoituskohde toimistotilat - Espoo
Sinikalliontie 11, Sinimäki, 02630 Espoo #10767001
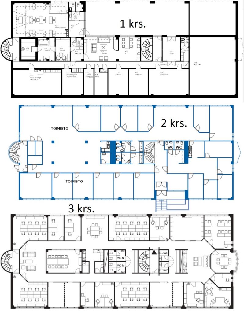
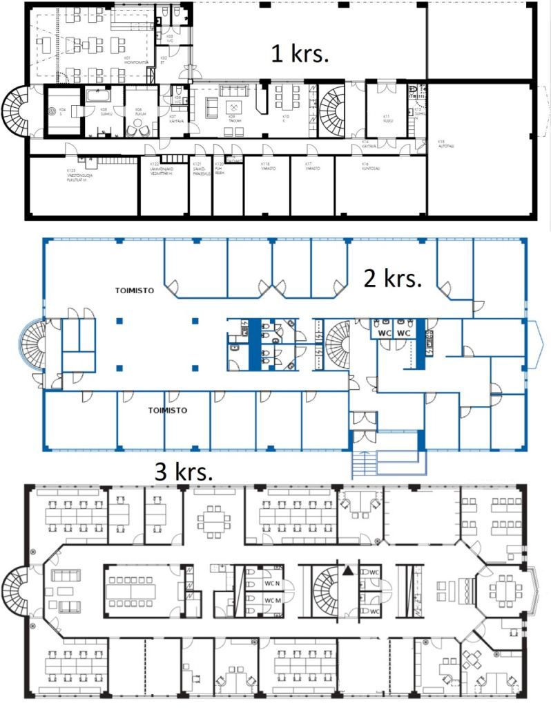
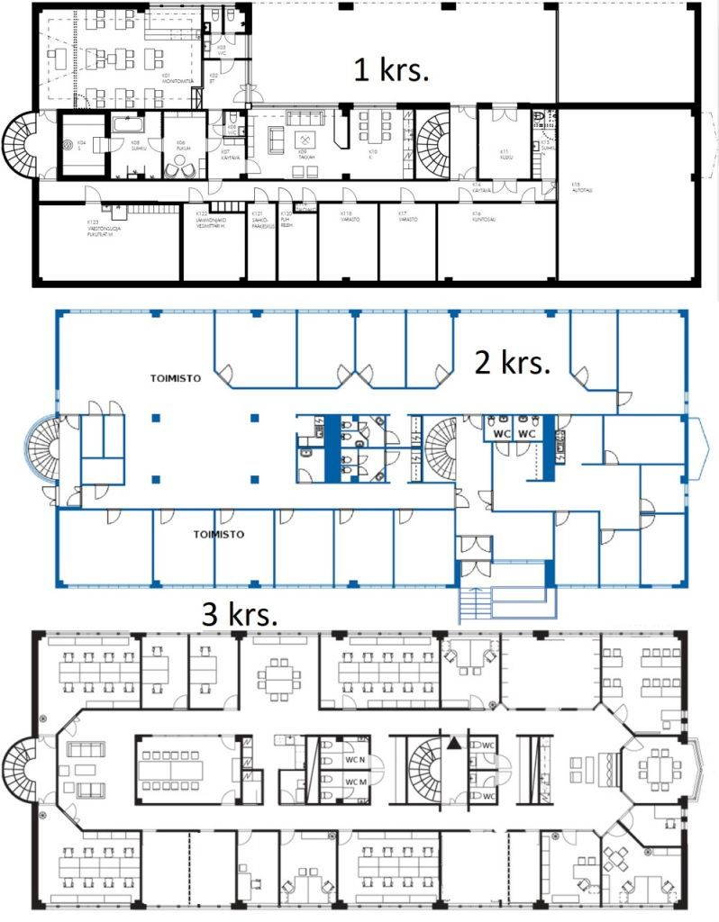
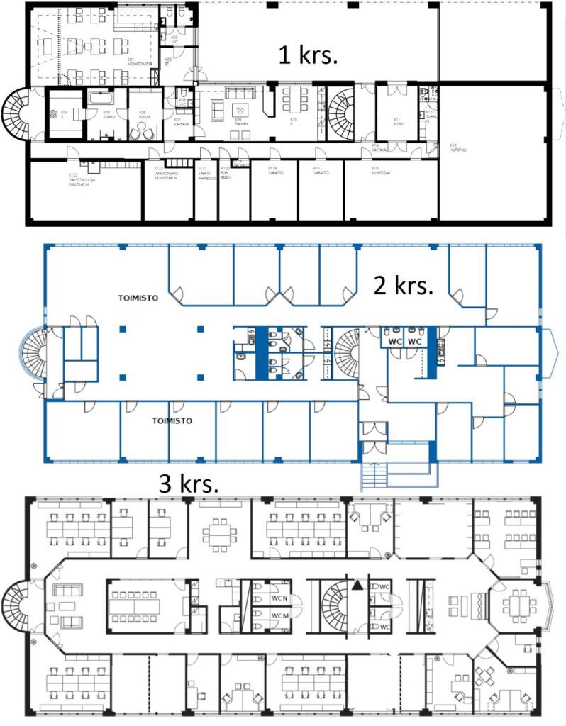
Kalustettu toimistotalo
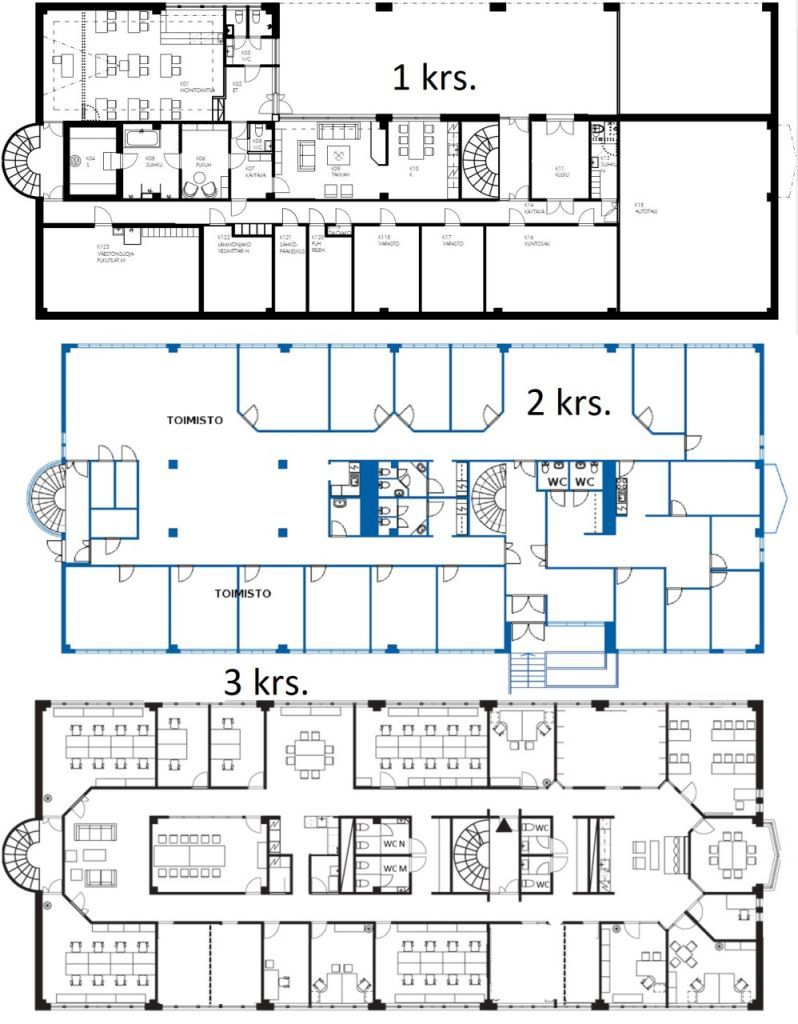
Kerroksia rakennuksessa on 3.
Lämmitysmuodot ovat kaukolämpö, vesikiertoinen keskuslämmitys.
Yleisettilat: varasto, sauna, väestönsuoja, tekninen tila, kuntosali, autotalli.
Habita Finland Oy
Elimäenkatu 17-19 , 00510 Helsinki
Näytä puhelinnumero
+358 10 585 5005
Timo Ahonen
Näytä puhelinnumero
+358 50 4200017
## Toimitilojen osto, myynti ja vuokraus
Habita Toimitilat on aktiivinen toimitilavälittäjä, joka myy ja vuokraa toimitiloja, sekä etsii sijoituskohteita asiakkailleen. Pääkonttorimme sijaitsee Helsingissä.
## Habitan toimitilavälitys
Palvelemme tehokkaasti myös Helsingin, Espoon, Vantaan ja muun pääkaupunkiseudun ulkopuolella, sillä laaja konttoriverkostomme kattaa koko maan. Jokaisesta Habitan toimipisteestä löytyy palveleva toimitila-ammattilainen, jolta löytyy kokemus ja asiantuntemus erityisesti toimitilojen välityksestä. Tule käymään toimistollamme tai soita, niin löydämme sinulle parhaat toimitilat.
