Vuokrataan - Lahti
Askonkatu 13, Askonalue, 15100 Lahti #10766997
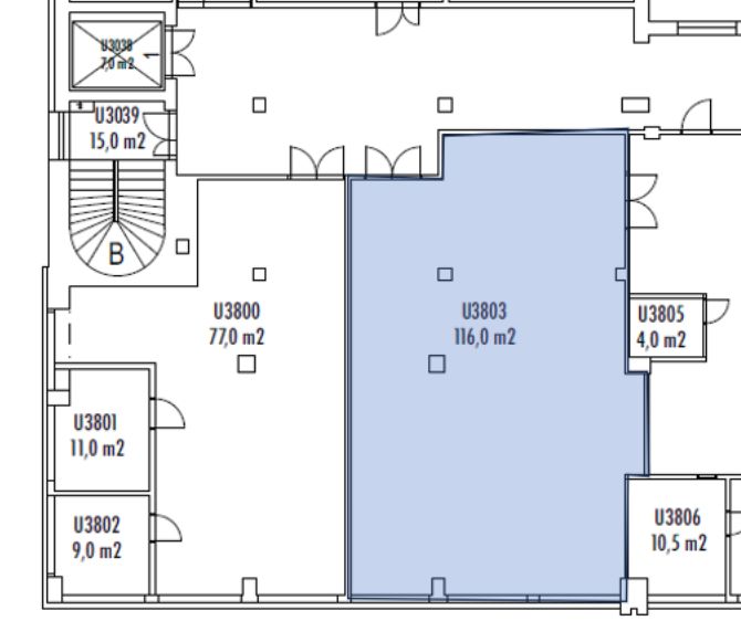
Vuokrattavana valoisa toimitila ( 116 m2), joka soveltuu työtilaksi tai varastoksi. Tila sijaitsee 3.kerroksessa, johon tavarahissiyhteys lastauslaiturilta. Tilassa on vesipiste.
Osoite
Askonkatu 13, 15100 Lahti
Vapautuu
Kysy
Huoneiden lukumäärä
1
Energiatehokkuusluokka
Ei lain edellyttämää energiatodistusta
Ota yhteyttä
RHG Real Estate
Hämeenkatu 2 B20, 20500 Turku
Näytä puhelinnumero
020 734 4020
Heli Reinberg
Näytä puhelinnumero
040 647 4900
Pyydä lisätietoa
